Unik ejendom i første række til Lillebælt med egen strandgrund
Beliggenden er helt i top - absolut en af Middelfarts bedste adresser og i første række til Lillebælt, rolige omgivelser og med adgang til egen strandgrund. Liebhavevilla med skønne ramme til, at man kan få en liebhavervilla med sit helt eget præg idet ejendommen indvendigt er klar til et større renoveringsprojekt.
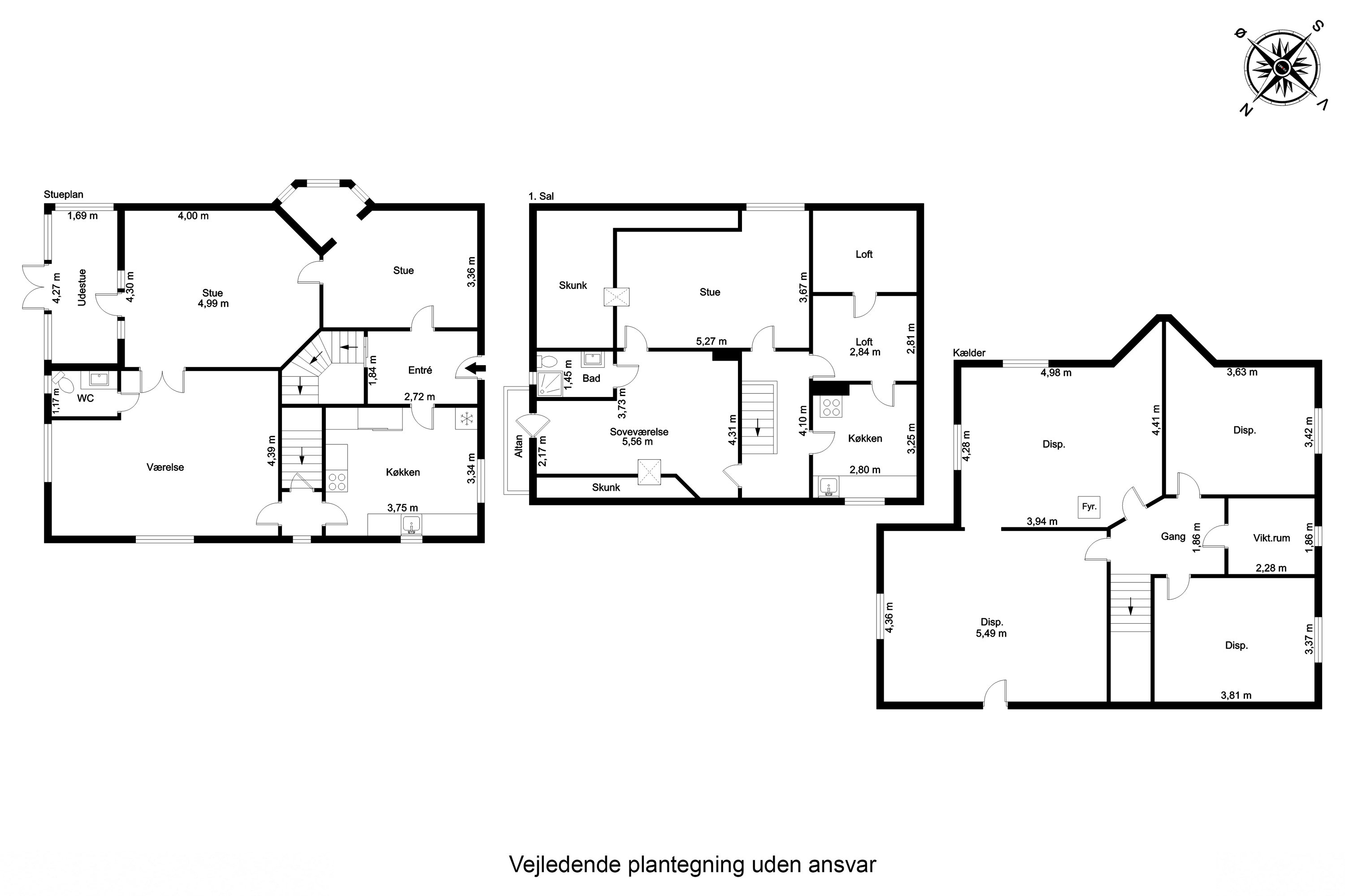
Unik ejenom - sjældent udbudt og i første række til Lillebælt og som nævnt med egen strandgrund, panoramaudsigt og med 204m² bolig, hvortil kommer en kælder på 102m². Dette er ikke bare en bolig men et sted, hvor man selv kan skabe noget helt enestående.
Et indvendigt renoveringsprojekt, hvor man således selv bestemmer hvordan ens drømme skal udfoldes. Strib er en en hyggelig by, hvor man finder skoler, børnehave, flere indkøbsmuligheder, svømmehal, idrætsfaciliteter, lægehus og meget mere og så alene ca. 5 kilomter til centrum af Middelfart. Centralt placering i Danmark og med ca. 2 timers kørsel til enten København eller Hamborg.
Nuværende ejer har selv fået udfærdiget tegningsmateriale til, hvordan ejendommen kan komme til at udfolde sig - se plantegningen som er udtryk for de tanker og ideer nuværende ejer har haft og således ikke i tråd med det som villaen giver udtryk for lige nu og her. Grundarealet udgør 2.794 m² og således er der mulighed for mange at få en villa hvor man selv kan sætte sit præg.
Med sin perfekte blanding af historisk sjæl og hvor den moderne komfort kan få sit indtog alt efter ny ejers tanker og ideer med skønne nye rum, nye installationer og en fredelig naturskøn beliggenhed, er Nørre Alle 43 det perfekte sted at slå sin ned.
Økonomien i boligen
Skal Nykredit Bank ringe for en snak om din boligøkonomi?
Fortæl os, hvornår det passer dig, så ringer en rådgiver fra Nykredit Bank dig op til en uforpligtende snak om dine lånemuligheder. Så er du et skridt tættere på din nye bolig.
Vi bruger dine oplysninger til at forberede samtalen. Læs mere i Nykredit Banks privatlivspolitik
Kontakt

Kontakt
Tom Skjellerup
Skal du også sælge?
Kontakt os og få en gratis salgsvurdering, så ved du hvad din bolig er værd.
- Få et hurtigt estimat af salgspris eller en grundig vurdering.
- Få et indblik i, hvad din ejendom er værd på markedet lige nu.
- Find ud af, hvor meget du selv kan købe for, hvis du ønsker at skifte bolig.
Hvor langt er der til nærmeste?
Se hvor lang tid der er mellem denne bolig og en anden adresse
Fakta om Middelfart Kommune
INDBYGGERE
GRUNDSKYLD
KOMMUNESKAT
SKOLER
BØRNEPASNING
Opret dig i køberkartoteket og få besked om lignende boliger.
Få direkte besked, når der kommer relevante nye boliger til salg, der matcher dine ønsker. Du ser også de boliger, vi får til salg, som vi ikke viser på Nybolig.dk.
Tilpas filtre og opret