Charmerende og istandsat byejendom på hele 158 m2 bolig, med gode parkeringsmuligheder, med nærhed til alt!
>
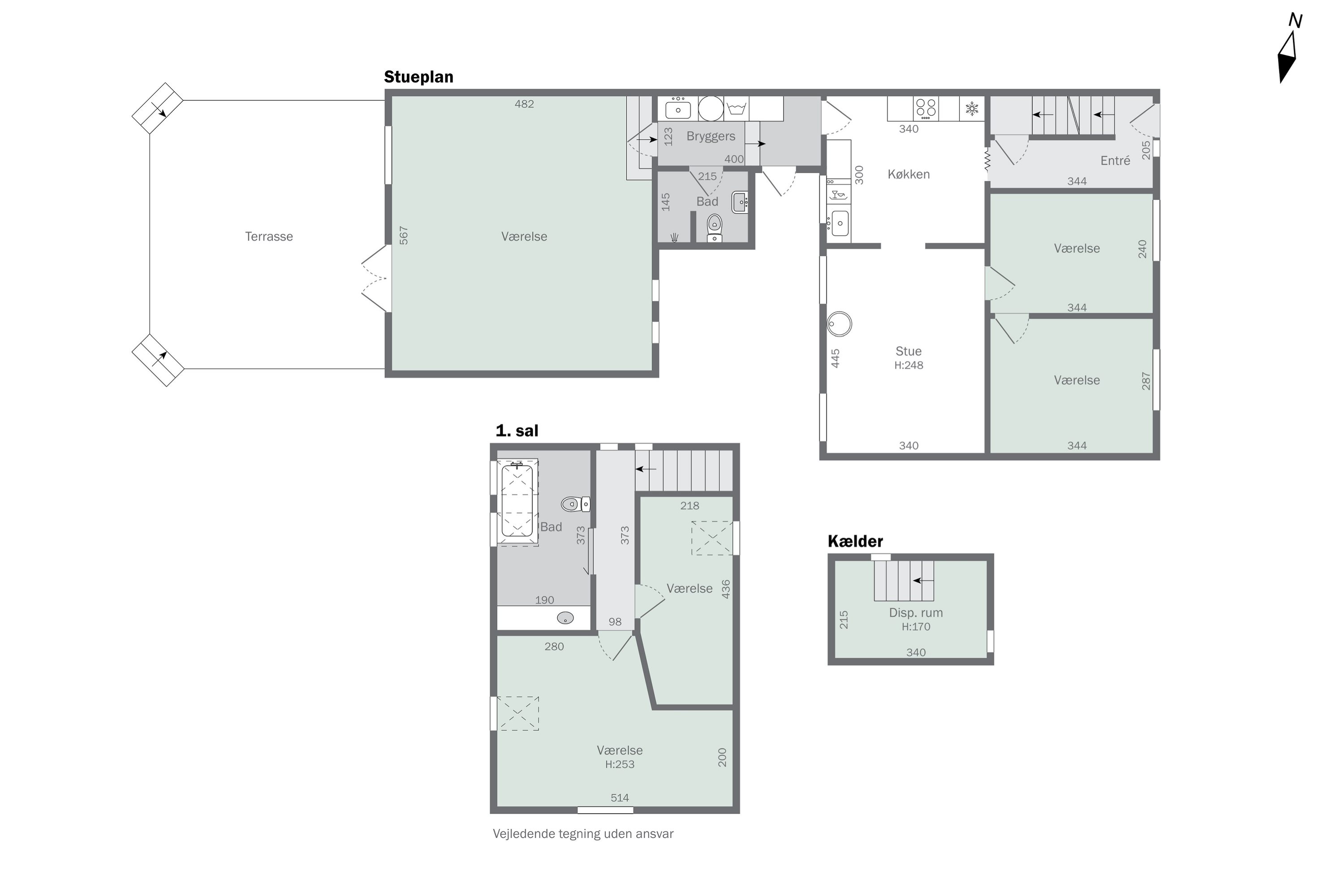
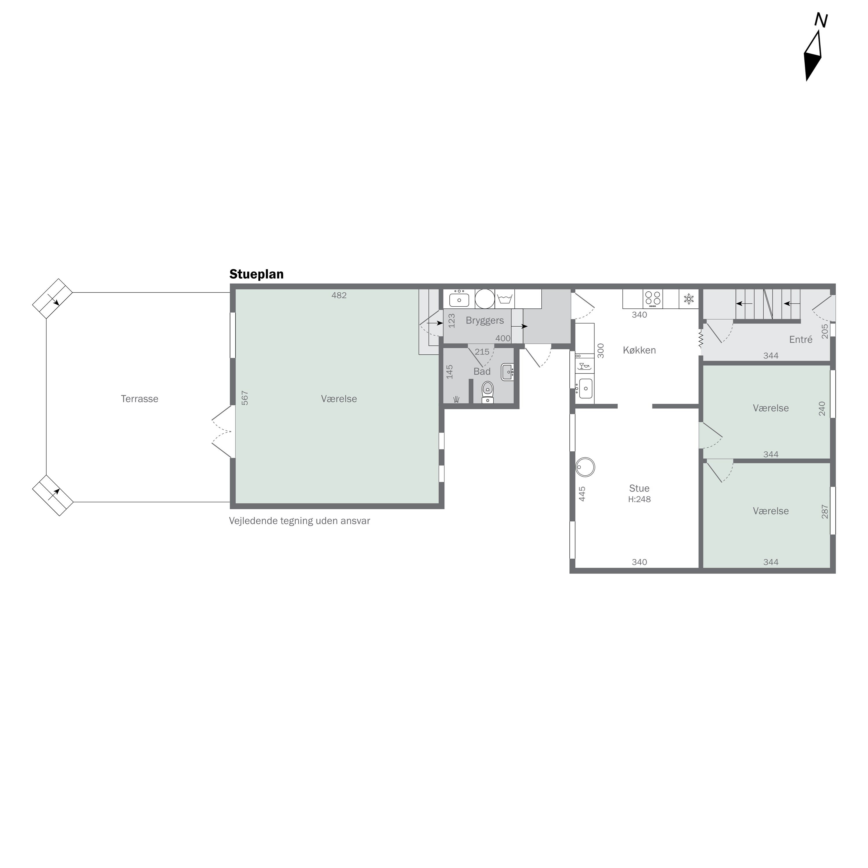
Ejendommen er beliggende i gåafstand til havnen, vandet ved Bjernebugten, indkøb, skole, grønne arealer, legepladser, børnehave og alle byens øvrige faciliteter. Dette smukke og charmerende hjem er løbende istandsat med respekt for husets sjæl og charme. Her er sket tilbygning, således man har alt der bruges i stueplan. Her kan nævnes entre fra gaden med den smukke trappe til 1.salen. Køkkenet er lyst, tidløst og har en god størrelse, med åben forbindelse til den tilstødende stue, hvor pilleovnen, sammen med kigget ud til den hyggelige og helt ugenerte gårdhave, skaber en utrolig hygge. Her findes ligeledes to yderligere værelser, som kan bruges til soverum eller spisestue, helt efter eget ønske.
I sidebygningen er etableret indgang fra gårdhaven, hvor man bliver budt velkommen i husets bryggers, med nem adgang til nyere badeværelse med bruseniche og klinkegulv. Til sidst er der sket tilbygning i det bagerste, med stort vinduesparti og udgang til den sydvendte have, med lækkert terrassemiljø. Dette fantastiske rum er stort, og kan dermed bruges til både soveværelse eller stue.
1.salen byder på repos og to gode værelser, hvoraf det ene har loft i kip. De fleste steder ses de smukke synlige bjælker, og det smukke trægulv går igen, som sammen skaber sjæl til huset. Til sidst et unikt badeværelse med klinkegulv, skabsarrangement, ovenlysvinduer, som man kan side i badekarret og kigge ud af, samt bruseniche.
Der kan parkeres på siden af bygningen, eller foran. Der findes som nævnt hyggeligt gårdhavemiljø, skur, flere gode terrasser og nem sydvendt have. Her findes sol HELE dagen - og matriklen passer perfekt til køberen, som IKKE ønsker utallige timers havearbejde hver uge, men drømmer om at nyde livet, familien, det charmerende hus og alle byens faciliteter i stedet. Køb, flyt ind og brug tiden på det, som virkeligt betyder noget.
En unik og sjældent udbudt ejendom, som absolut fortjener et besøg - ring allerede i dag og book en fremvisning.
Økonomien i boligen
Skal Nykredit Bank ringe for en snak om din boligøkonomi?
Fortæl os, hvornår det passer dig, så ringer en rådgiver fra Nykredit Bank dig op til en uforpligtende snak om dine lånemuligheder. Så er du et skridt tættere på din nye bolig.
Vi bruger dine oplysninger til at forberede samtalen. Læs mere i Nykredit Banks privatlivspolitik
Kontakt

Kontakt
Martin Madsen
Skal du også sælge?
Kontakt os og få en gratis salgsvurdering, så ved du hvad din bolig er værd.
- Få et hurtigt estimat af salgspris eller en grundig vurdering.
- Få et indblik i, hvad din ejendom er værd på markedet lige nu.
- Find ud af, hvor meget du selv kan købe for, hvis du ønsker at skifte bolig.
Hvor langt er der til nærmeste?
Se hvor lang tid der er mellem denne bolig og en anden adresse
Fakta om Faaborg-Midtfyn Kommune
INDBYGGERE
GRUNDSKYLD
KOMMUNESKAT
SKOLER
BØRNEPASNING
Opret dig i køberkartoteket og få besked om lignende boliger.
Få direkte besked, når der kommer relevante nye boliger til salg, der matcher dine ønsker. Du ser også de boliger, vi får til salg, som vi ikke viser på Nybolig.dk.
Tilpas filtre og opret