Villa 101 m² på 767 m² grund med garage, kælder og stor stueplan
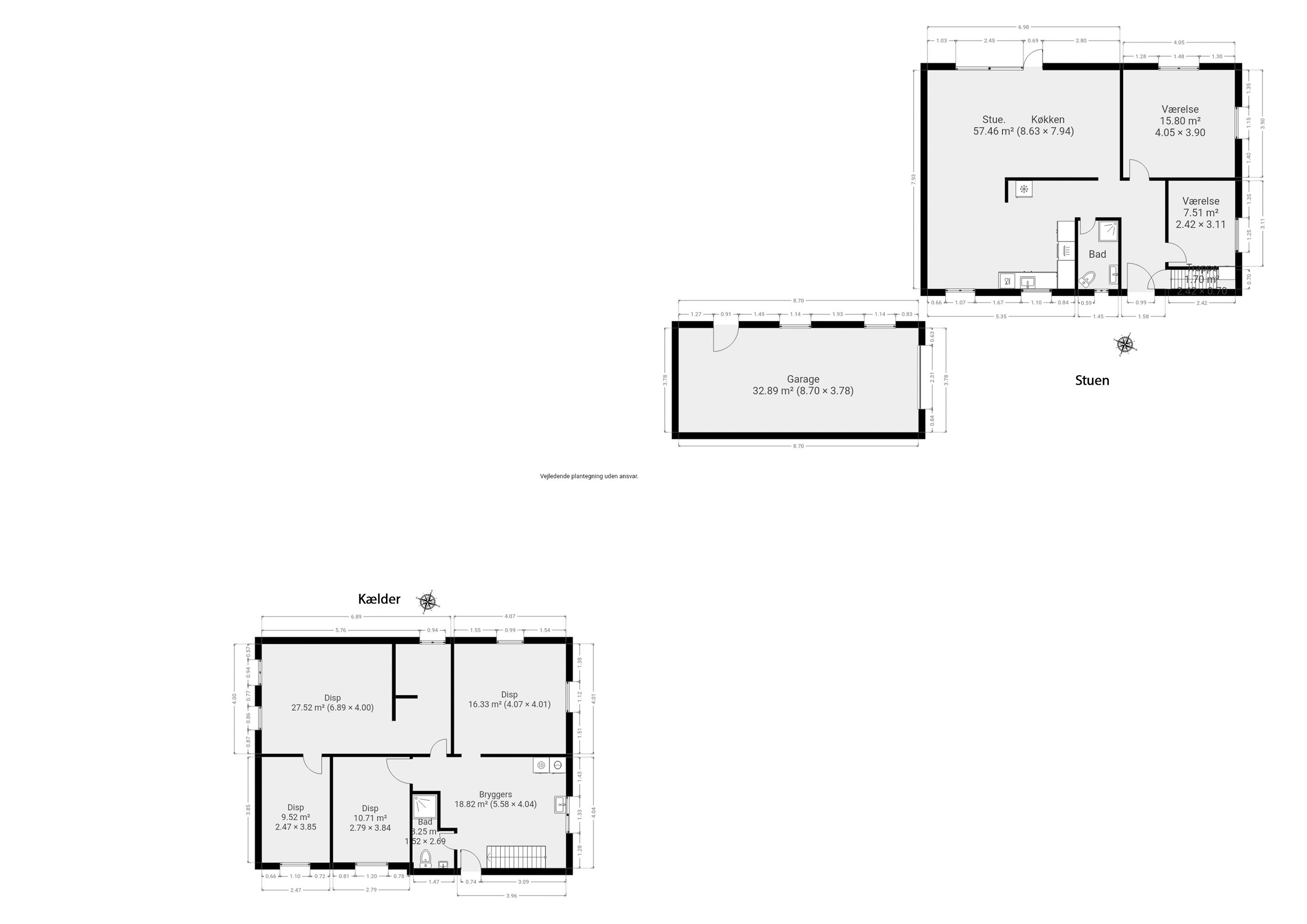
Villa på 101 m² fra 1959 med 3 værelser og 1 badeværelse placeret på en grund på 767 m². Fra indkørslen mødes du af den gule murstensfacade, en rummelig indkørsel og en separat garage med stor port. Huset fremstår indbydende ved første øjekast og giver plads til både privatliv og praktisk hverdagsbrug for en familie eller par, som ønsker have og værksted udenfor boligarealet.I stueplan ligger et stort, åbent opholdsrum og køkken på omkring 57 m², hvor brede vinduespartier lukker dagslys ind og skaber forbindelse til haven. Rummet er planlagt til samvær med plads til sofaområde og spiseplads, og en brændeovn bidrager med varme og stemning. Køkkenet har grå fronter, træbordplader og mosaik bagvæg, som giver et solidt arbejdsområde og mulighed for nem daglig madlavning.Huset rummer tre værelser, hvoraf det ene er velegnet som forældre- eller gæsteværelse og de øvrige som børneværelser eller kontor. Badeværelset i stueplan har separat brus og praktisk indretning, og kælderen byder på omkring 101 m² disponibel plads med flere rum, bryggers og ekstra badefaciliteter. Kælderen kan indrettes efter behov — hobbyrum, hjemmekontor, fitness eller opbevaring — og giver ekstra fleksibilitet i dagligdagen.Udendørs findes en lukket have med terrasse og grønne lægivende hegn, der skærmer af mod naboer og skaber et privat uderum. Den lange indkørsel giver flere parkeringspladser, og den separate garage på plantegningen (ca. 33 m²) fungerer som stort værksted eller garage til bil. Haven er nem at vedligeholde med græsarealer og plantebede, og terrassen inviterer til morgenkaffe og udendørs samvær i solrige perioder.Sammenfattende får du en velbeliggende villa med stor fleksibilitet, rummelige fællesarealer og en anvendelig kælder, der løfter boligernes funktionalitet. Ejendommen er klar til indflytning med mulighed for at sætte dit eget præg. Kontakt os for fremvisning og flere oplysninger på 62 61 16 16 — ring i dag og book en tid.
Økonomien i boligen
Skal Nykredit Bank ringe for en snak om din boligøkonomi?
Fortæl os, hvornår det passer dig, så ringer en rådgiver fra Nykredit Bank dig op til en uforpligtende snak om dine lånemuligheder. Så er du et skridt tættere på din nye bolig.
Vi bruger dine oplysninger til at forberede samtalen. Læs mere i Nykredit Banks privatlivspolitik
Kontakt

Kontakt
Martin Madsen
Skal du også sælge?
Kontakt os og få en gratis salgsvurdering, så ved du hvad din bolig er værd.
- Få et hurtigt estimat af salgspris eller en grundig vurdering.
- Få et indblik i, hvad din ejendom er værd på markedet lige nu.
- Find ud af, hvor meget du selv kan købe for, hvis du ønsker at skifte bolig.
Hvor langt er der til nærmeste?
Se hvor lang tid der er mellem denne bolig og en anden adresse
Fakta om Faaborg-Midtfyn Kommune
INDBYGGERE
GRUNDSKYLD
KOMMUNESKAT
SKOLER
BØRNEPASNING
Opret dig i køberkartoteket og få besked om lignende boliger.
Få direkte besked, når der kommer relevante nye boliger til salg, der matcher dine ønsker. Du ser også de boliger, vi får til salg, som vi ikke viser på Nybolig.dk.
Tilpas filtre og opret