Rummelig villa nær vandet i Åbyskov med mulighed for B&B
Kun 200 meter fra vandet og med udsigt til det Fynske Øhav ligger denne rummelige etplansvilla på Åbyskovtoften 6. Her kan I leve en rolig tilværelse omgivet af smuk natur med mulighed for at drive B&B i tilbygningen.
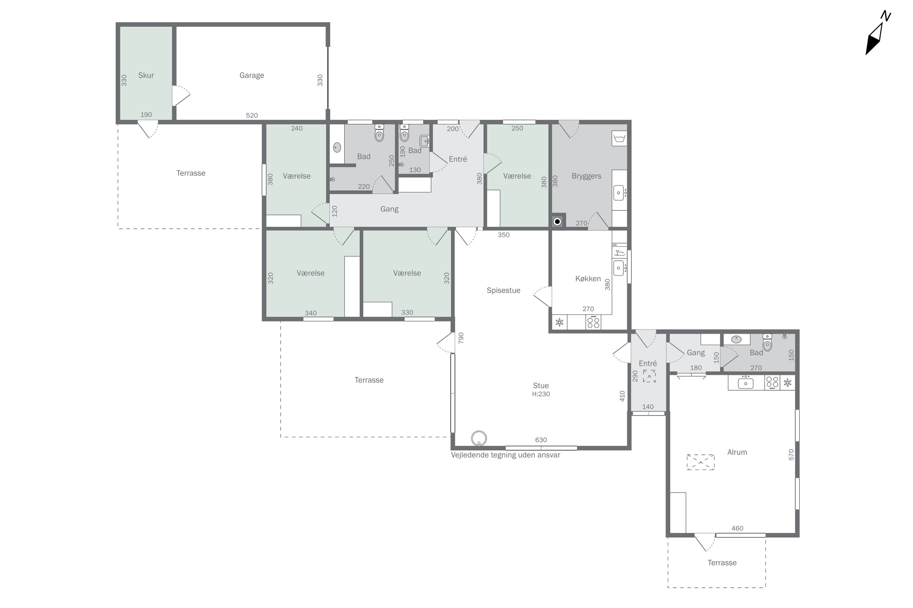
Huset er en charmerende halvfjerdservilla fra 1971 bygget i hvide mursten, som står i flot kontrast til de sorte vinduer og sorte tag. De 183 kvadratmeter er veludnyttede og husets placering sikrer et godt lysindfald i vinkelstuen fra de sydøstvendte og sydvestvendte vinduer. Fra stuen er der indgang til et nydeligt køkken, hvor I også kan indrette en siddeplads, og herfra er der videre udgang til bryggerset. Via entréen finder I hjemmets fire fornuftige værelser samt et badeværelse med brus og et gæstetoilet.
I forbindelse med stuen er der lavet en tilbygning med separat indgang, der nemt kan bruges som B&B. Her kan gæster slappe af i det åbne opholdsrum, hvor loft til kip skaber en ekstra luftig atmosfære. Der er fin plads til at indrette både soveafdeling udover en spiseplads ved køkkenet, og gæster har yderligere adgang til eget badeværelse med brus og en sydvendt terrasse, hvor de kan slappe af i en privat lomme af haven.
Husets faste beboere kan nyde solen og grillmaden hele sommerhalvåret fra de to sydvestvendte fliseterrasser, og børn får god plads til boldspil og leg på plænen.
I Åbyskov kan I leve en hyggelig landsbytilværelse uden at være langt fra de daglige fornødenheder. Både skole, daginstitution og indkøb nås hurtigt i bil eller på cykel i Skårup, og der er kun et kvarter i bil til centrum i Svendborg, hvor I finder et bredt udvalg af indkøbsmuligheder, shopping og hyggelige caféer.
Økonomien i boligen
Skal Nykredit Bank ringe for en snak om din boligøkonomi?
Fortæl os, hvornår det passer dig, så ringer en rådgiver fra Nykredit Bank dig op til en uforpligtende snak om dine lånemuligheder. Så er du et skridt tættere på din nye bolig.
Vi bruger dine oplysninger til at forberede samtalen. Læs mere i Nykredit Banks privatlivspolitik
Kontakt

Kontakt
Jonas Pytlick
Skal du også sælge?
Kontakt os og få en gratis salgsvurdering, så ved du hvad din bolig er værd.
- Få et hurtigt estimat af salgspris eller en grundig vurdering.
- Få et indblik i, hvad din ejendom er værd på markedet lige nu.
- Find ud af, hvor meget du selv kan købe for, hvis du ønsker at skifte bolig.
Hvor langt er der til nærmeste?
Se hvor lang tid der er mellem denne bolig og en anden adresse
Fakta om Svendborg Kommune
INDBYGGERE
GRUNDSKYLD
KOMMUNESKAT
SKOLER
BØRNEPASNING
Opret dig i køberkartoteket og få besked om lignende boliger.
Få direkte besked, når der kommer relevante nye boliger til salg, der matcher dine ønsker. Du ser også de boliger, vi får til salg, som vi ikke viser på Nybolig.dk.
Tilpas filtre og opret