Centralt beliggende villa i Bov
Hærvejen 30 i Bov, er en centralt beliggende villa, der tilbyder ideelle forhold for en stor familie med sin nærhed til skole, daginstitutioner, svømmehal og indkøbsmuligheder. Villaens beliggenhed gør den også attraktiv for pendleren, da den ligger tæt på både motorvejen og togstationen i Padborg. Samtidig ligger ejendommen tæt på skov og grønne områder, hvilket giver gode muligheder for naturoplevelser og udendørs aktiviteter.
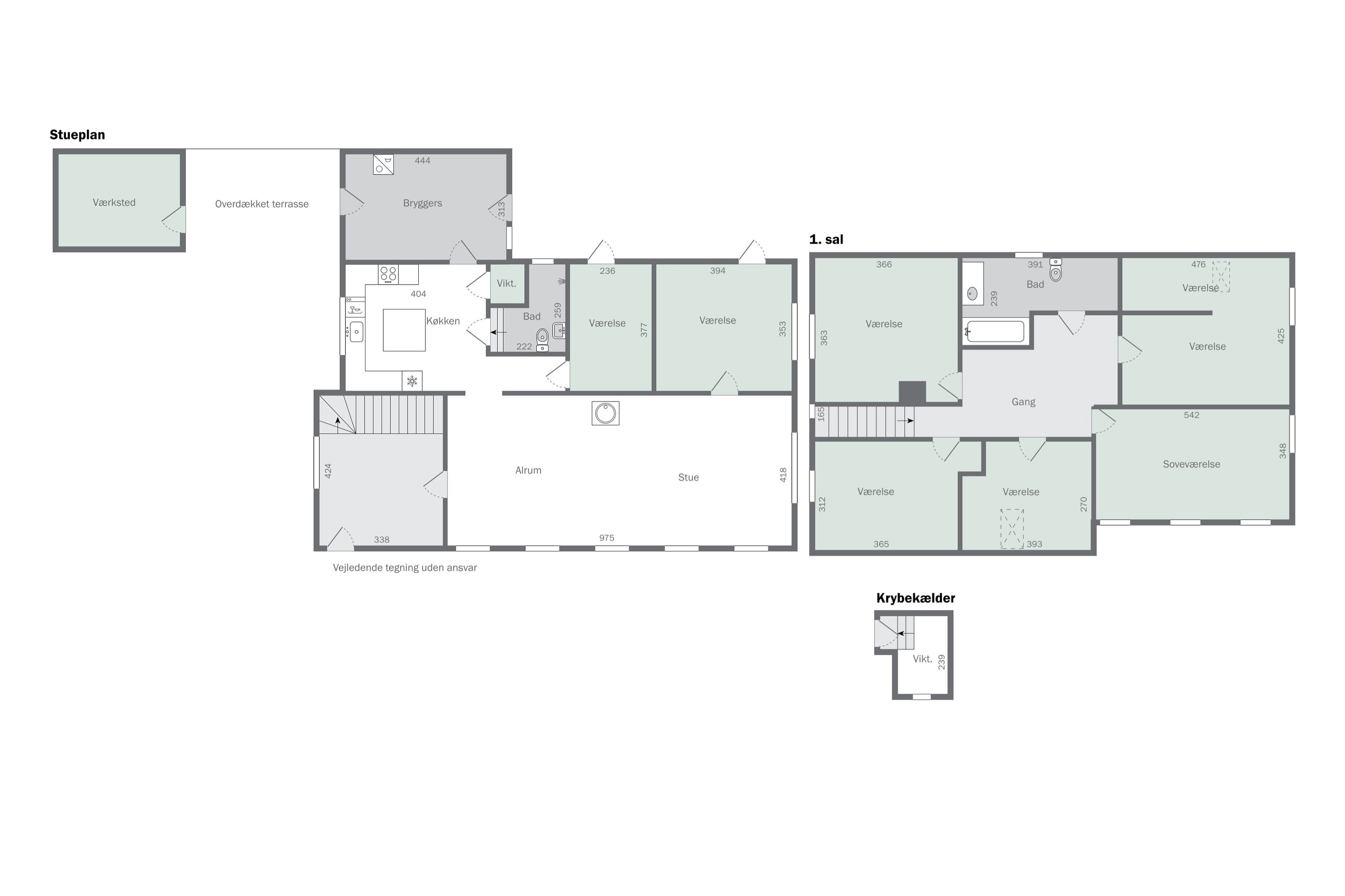
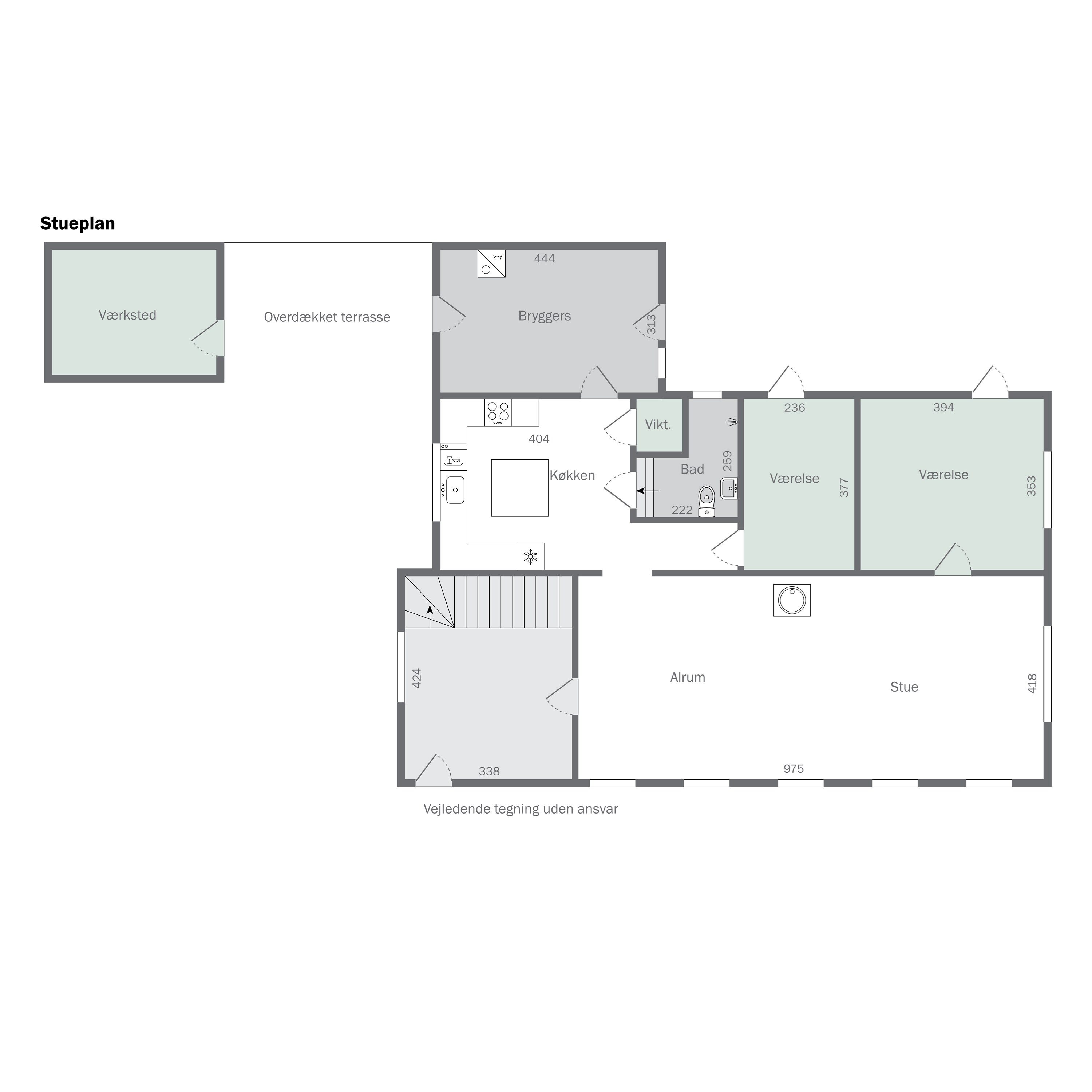
Indendørs byder villaen på en rummelig entré, hvorfra der er adgang til førstesalen via en trappe. Husets hjerte er det fine køkkenalrum, som har adgang til et praktisk viktualierum med rigelig opbevaringsplads. Fra køkkenet er der også adgang til den store stue, som er udstyret med en brændeovn. Stuen rummer både en spiseplads og plads til sofaarrangement, hvilket gør det til et hyggeligt samlingspunkt for familien. I stueplan finder I også et stort soveværelse og et ekstra værelse. Disse har tidligere fungeret som én stor stue, og er opdelt med en let væg, hvilket gør det nemt at etablere et stort værelse eller stue igen - alt efter behov. Yderligere er her et badeværelse med brus samt et praktisk bryggers med masser af opbevaringsplads og plads til vaskemaskine og tørretumbler.
Førstesalen er indrettet med hele 5 gode værelser, hvilket giver masser af plads til børneværelser, gæsteværelser eller hjemmekontorer. Her finder I også et badeværelse med kar, hvilket er ideelt for familiens behov.
Udendørs byder ejendommen på en dejlig have med en fin træterrasse, hvor der er indbygget et bassin, som giver en ekstra charme til haven. Derudover er der en overdækket terrasse, hvor man kan nyde udendørs ophold uanset vejret, samt et værksted, der er perfekt til opbevaring af haveredskaber.
Alt i alt er Hærvejen 30, Bov, en god stor villa med mange værelser og masser af potentiale for at sætte sit eget præg, hvilket gør den oplagt for den store familie, der ønsker en bolig med både plads og funktionalitet.
Økonomien i boligen
Skal Nykredit Bank ringe for en snak om din boligøkonomi?
Fortæl os, hvornår det passer dig, så ringer en rådgiver fra Nykredit Bank dig op til en uforpligtende snak om dine lånemuligheder. Så er du et skridt tættere på din nye bolig.
Vi bruger dine oplysninger til at forberede samtalen. Læs mere i Nykredit Banks privatlivspolitik
Kontakt

Kontakt
Andreas Thomsen Nøhr
Skal du også sælge?
Kontakt os og få en gratis salgsvurdering, så ved du hvad din bolig er værd.
- Få et hurtigt estimat af salgspris eller en grundig vurdering.
- Få et indblik i, hvad din ejendom er værd på markedet lige nu.
- Find ud af, hvor meget du selv kan købe for, hvis du ønsker at skifte bolig.
Hvor langt er der til nærmeste?
Se hvor lang tid der er mellem denne bolig og en anden adresse
Fakta om Aabenraa Kommune
INDBYGGERE
GRUNDSKYLD
KOMMUNESKAT
SKOLER
BØRNEPASNING
Opret dig i køberkartoteket og få besked om lignende boliger.
Få direkte besked, når der kommer relevante nye boliger til salg, der matcher dine ønsker. Du ser også de boliger, vi får til salg, som vi ikke viser på Nybolig.dk.
Tilpas filtre og opret