Oplev mulighederne i denne rummelige villa i Tulstrup
På Bangsvej 2 i det naturskønne Tulstrup nord for Ikast præsenterer vi hermed en villa fra 1920 med masser af karakter og potentiale, til at I kan sætte jeres præg på hjemmet. Med en boligstørrelse på 196 kvadratmeter og en grund på 1.044 kvadratmeter er her god plads både inde og ude.
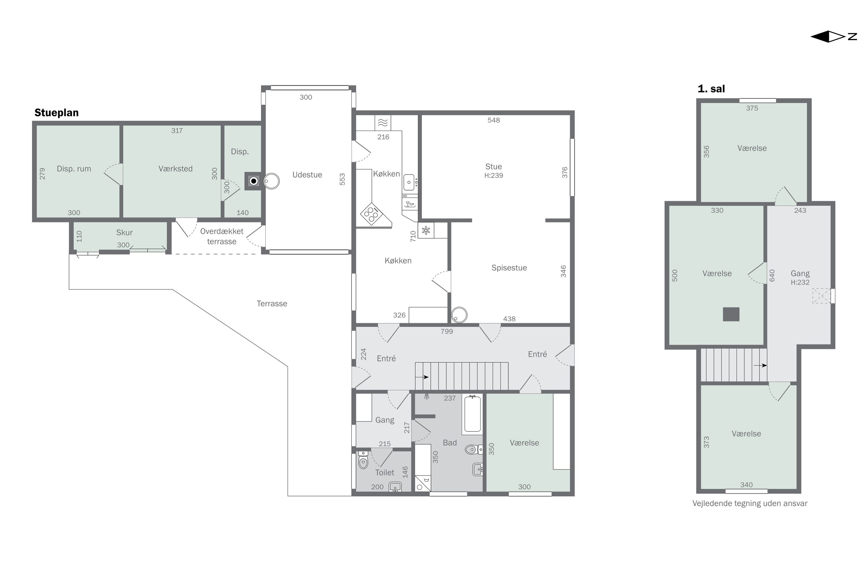
Huset byder på en rummelig entré, der fører ind til to stuer, en suite, med en brændeovn og et tilstødende spisekøkken med udgang til en charmerende udestue, hvor I kan nyde haven året rundt også på køligere dage takket være en brændeovn. På stueetagen findes desuden et værelse med skabsvæg, et gæstetoilet samt et stort badeværelse udstyret med både bruser, badekar og praktiske vaskefaciliteter.
På førstesalen er der en møblerbar repos, som leder til tre dejlige værelser, alle med god plads.
Udenfor venter en flot og velholdt have, komplet med en havedam og et lille vandløb, som tilføjer til den idylliske stemning. Haven har desuden flotte blomsterbede, frodige træer og flere terrasser, der indbyder til udendørsaktiviteter og afslapning. Derudover er der en god køkkenhave og et stort drivhus for jer, som nyder havearbejde.
Villaen ligger ud til åbne marker, og I har nem adgang til Ikast via en cykelsti. Ikast har alle nødvendige faciliteter såsom indkøb, station, daginstitutioner og skoler inden for to kilometers afstand. For de sportsglade er der både IBF Arena og Tulstrup Stadion i nærheden, og for naturinteresserede er der kort afstand til Linnebjerg Plantage og Troldmose, perfekte steder til udflugter i det fri.
Dette hjem er ideelt for jer, som søger plads, natur og potentiale til at skabe jeres drømmehjem. Kom selv og se om det er her, I skal slå jer ned.
Økonomien i boligen
Skal Nykredit Bank ringe for en snak om din boligøkonomi?
Fortæl os, hvornår det passer dig, så ringer en rådgiver fra Nykredit Bank dig op til en uforpligtende snak om dine lånemuligheder. Så er du et skridt tættere på din nye bolig.
Vi bruger dine oplysninger til at forberede samtalen. Læs mere i Nykredit Banks privatlivspolitik
Kontakt

Kontakt
Michael Holm Nielsen
Skal du også sælge?
Kontakt os og få en gratis salgsvurdering, så ved du hvad din bolig er værd.
- Få et hurtigt estimat af salgspris eller en grundig vurdering.
- Få et indblik i, hvad din ejendom er værd på markedet lige nu.
- Find ud af, hvor meget du selv kan købe for, hvis du ønsker at skifte bolig.
Hvor langt er der til nærmeste?
Se hvor lang tid der er mellem denne bolig og en anden adresse
Fakta om Ikast--Brande Kommune
INDBYGGERE
GRUNDSKYLD
KOMMUNESKAT
SKOLER
BØRNEPASNING
Opret dig i køberkartoteket og få besked om lignende boliger.
Få direkte besked, når der kommer relevante nye boliger til salg, der matcher dine ønsker. Du ser også de boliger, vi får til salg, som vi ikke viser på Nybolig.dk.
Tilpas filtre og opret