- Altan
- Egen have
Stilren funkisvilla med udsigt til Kalø Vig i Ugelbølle
På Vorregårdsparken 5 finder I denne moderne og fuldmurede funkisvilla fra 2020, opført i kvalitetsmaterialer med fokus på funktionalitet og design.
Her får I 169 m² bolig samt en integreret dobbeltgarage på hele 41 m² med , gulvvarme og klargjort til elbil – ideelt til den moderne familie, der ønsker komfort og gennemtænkte løsninger.
Boligen er placeret på en rolig, blind vej i det attraktive Ugelbølle og byder på en fantastisk udsigt til Kalø Vig, skoven og Rønde. Det arkitektoniske udtryk er stilrent og minimalistisk, og de store vinduespartier sikrer et flot lysindfald, der skaber en lys og indbydende atmosfære i hele hjemmet.
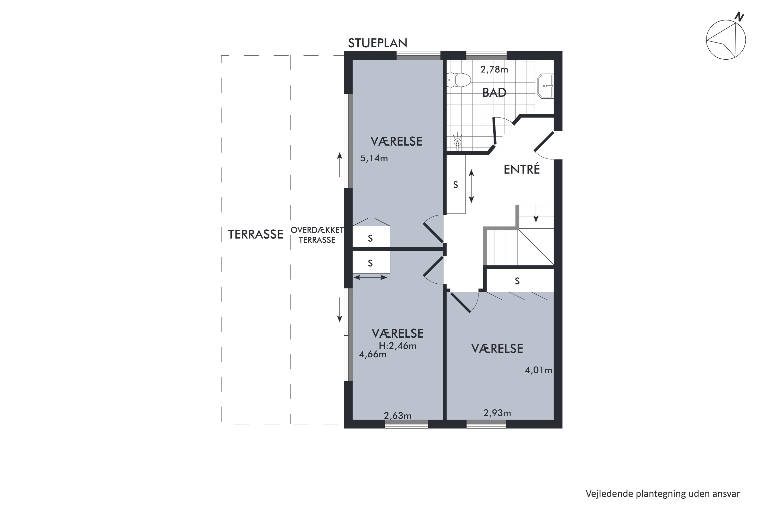
Indretningen er gennemtænkt med en separat teenageafdeling i underetagen, hvor der er tre gode værelser, badeværelse og direkte adgang til terrasse. På førstesalen finder I boligens hjerte – et stort køkken/alrum i åben forbindelse med stuen, udgang til altan samt to værelser og endnu et badeværelse. Her er der kræset for detaljerne med Svane køkken og Svane badeværelser, som understreger boligens høje kvalitet. Hver kvadratmeter er udnyttet optimalt, og boligen fremstår indflytningsklar.
Ugelbølle er kendt for sin naturskønne beliggenhed og stærke fællesskabsfølelse. Her finder I friskole, daginstitutioner og et aktivt foreningsliv, mens Rønde med indkøb, skole og gymnasium ligger kun få minutter væk. Aarhus nås på blot 25 minutter via motorvejen, og området omkring Kalø Vig og Mols Bjerge indbyder til friluftsliv og rekreative oplevelser.
Ejendommen på Vorregårdsparken 5 tilbyder en moderne bolig med gennemtænkte detaljer, skønne uderum og en beliggenhed, der skal opleves.
Kontakt Nybolig Jeppesen & Sørensen allerede i dag for en fremvisning – vi glæder os til at byde jer velkommen!
Økonomien i boligen
Skal Nykredit Bank ringe for en snak om din boligøkonomi?
Fortæl os, hvornår det passer dig, så ringer en rådgiver fra Nykredit Bank dig op til en uforpligtende snak om dine lånemuligheder. Så er du et skridt tættere på din nye bolig.
Vi bruger dine oplysninger til at forberede samtalen. Læs mere i Nykredit Banks privatlivspolitik
Kontakt
 
                Kontakt
Morten Brink Hinrichsen
Skal du også sælge?
Kontakt os og få en gratis salgsvurdering, så ved du hvad din bolig er værd.
- Få et hurtigt estimat af salgspris eller en grundig vurdering.
- Få et indblik i, hvad din ejendom er værd på markedet lige nu.
- Find ud af, hvor meget du selv kan købe for, hvis du ønsker at skifte bolig.
Hvor langt er der til nærmeste?
Se hvor lang tid der er mellem denne bolig og en anden adresse
Fakta om Syddjurs Kommune
INDBYGGERE
GRUNDSKYLD
KOMMUNESKAT
SKOLER
BØRNEPASNING
Opret dig i køberkartoteket og få besked om lignende boliger.
Få direkte besked, når der kommer relevante nye boliger til salg, der matcher dine ønsker. Du ser også de boliger, vi får til salg, som vi ikke viser på Nybolig.dk.
Tilpas filtre og opret