Sæt jeres eget præg i Them<br>
Tag med til Them syd for Silkeborg, hvor denne renoveringsmodne ejendom nu kan blive jeres. Etplansvillaen i det lukkede kvarter på Præstemarken 13 står klar til at få en kærlig hånd, ligesom I får mulighed for at indrette huset, præcis som I forestiller jer. Udgangspunktet er en solid ejendom fra 1977 med en god planløsning. Ligeledes er grunden stor, og der medfølger en muret garage.
I bosætter jer i et roligt, lukket vænge klos op ad marker og skov og får tilmed kort afstand til alt det, I har behov for i hverdagen. Børnene kan hurtigt nå Frisholm Skole på cykel, og her finder I også Them Svømmehal og pasningstilbud for de mindste. Ydermere er der få skridt til indkøbsmulighederne i bymidten, og det tager blot et kvarter at køre til flere af byens tilbud i Silkeborg.
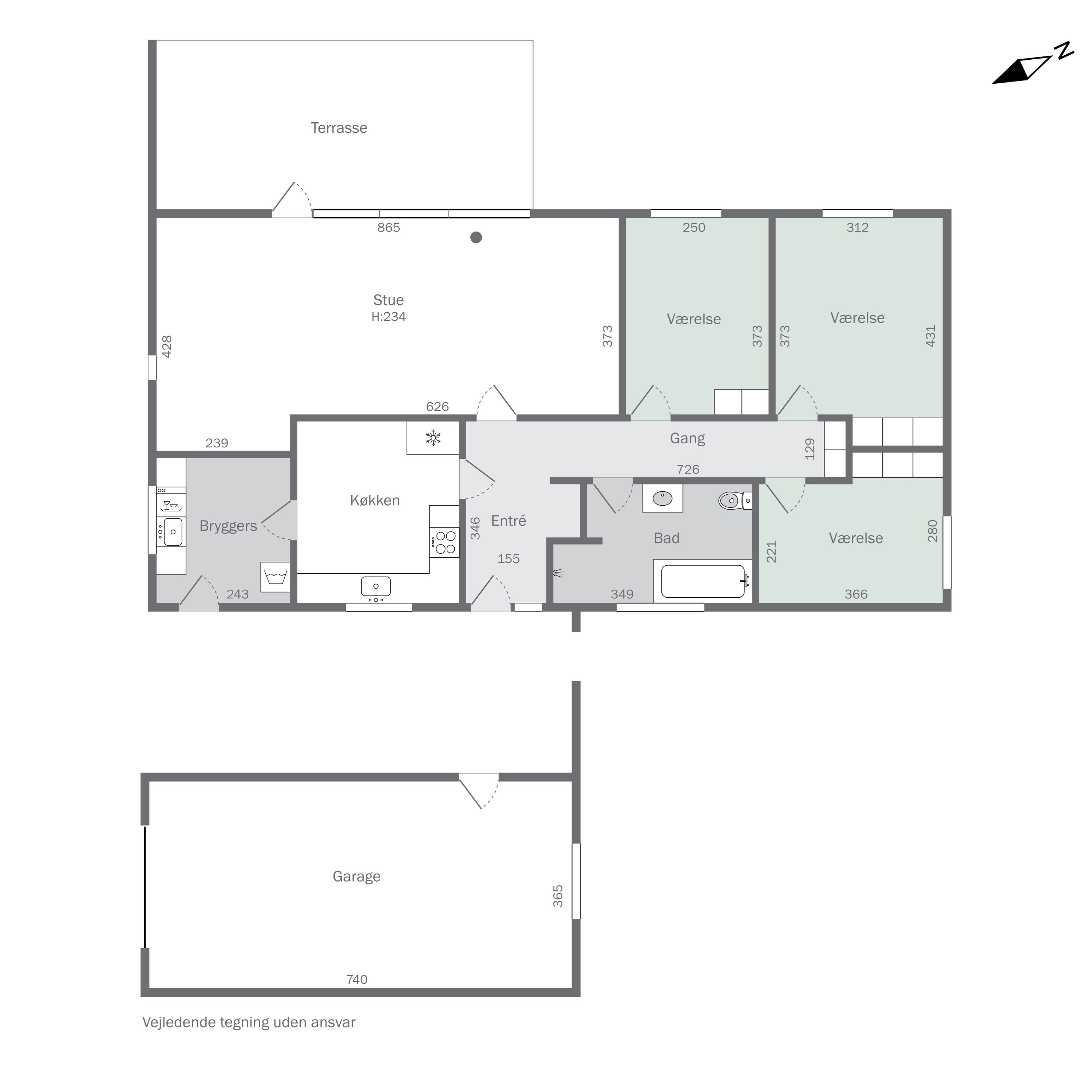
I huset overgår den rummelige entré til en fordelingsgang med adgang til samtlige rum. Stuen udgør det primære opholdsrum, hvor sollyset strømmer ind gennem et vældigt vinduesparti, og da køkkenet er i rummet ved siden af, kan I nemt forene de to til ét stort køkken-alrum.
Som indretningen er nu, får I rum til en spiseplads i køkkenet, og derudover er køkkenet praktisk forbundet med bryggerset, som er med egen indgang. I modsatte afdeling venter tre store, lyse værelser med faste garderobeskabe, og der er også et badeværelse med kar og bruseniche. Den nuværende planløsning tilgodeser derfor fint de fleste familiers behov, omend der er mange muligheder i huset.
Ude venter haven, som hurtigt bliver til et skønt fristed med masser af plads til alle sommerens aktiviteter, og det er oplagt at udnytte udsigten over marker, enge og skov.
Økonomien i boligen
Skal Nykredit Bank ringe for en snak om din boligøkonomi?
Fortæl os, hvornår det passer dig, så ringer en rådgiver fra Nykredit Bank dig op til en uforpligtende snak om dine lånemuligheder. Så er du et skridt tættere på din nye bolig.
Vi bruger dine oplysninger til at forberede samtalen. Læs mere i Nykredit Banks privatlivspolitik
Kontakt

Kontakt
Julie Pedersen
Skal du også sælge?
Kontakt os og få en gratis salgsvurdering, så ved du hvad din bolig er værd.
- Få et hurtigt estimat af salgspris eller en grundig vurdering.
- Få et indblik i, hvad din ejendom er værd på markedet lige nu.
- Find ud af, hvor meget du selv kan købe for, hvis du ønsker at skifte bolig.
Hvor langt er der til nærmeste?
Se hvor lang tid der er mellem denne bolig og en anden adresse
Fakta om Silkeborg Kommune
INDBYGGERE
GRUNDSKYLD
KOMMUNESKAT
SKOLER
BØRNEPASNING
Opret dig i køberkartoteket og få besked om lignende boliger.
Få direkte besked, når der kommer relevante nye boliger til salg, der matcher dine ønsker. Du ser også de boliger, vi får til salg, som vi ikke viser på Nybolig.dk.
Tilpas filtre og opret