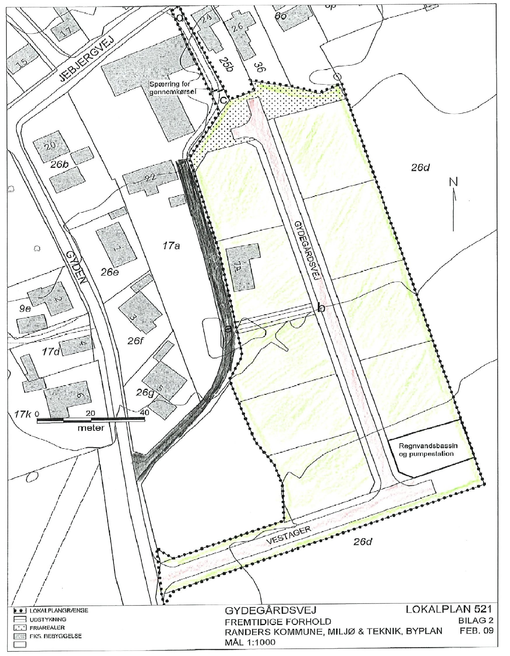
Udstyk 9 parcelhusgrunde eller bo med stort stykke jord med mange muligheder
Her er mulighed for at lave 9 byggegrund. Lokalplanen er på plads, så du kan bare gå i gang. Alternativt er der også mulighed for at bo i naturskønne omgivelser og selv dyrke dine grøntsager på den over 1 ha. store grund, som ligger lige op ad huset.
Huset er af ældre dato, men pænt og velholdt indefra og ud, og de mange sydvendte vinduer sørger for et fantastisk lysindfald hele dagen. Indretningen præges dertil af hvidmalede vægge, slebne trægulve og flotte klinker, der ligeledes løfter udtrykket. Her kan I altså bare flytte ind og starte hverdagen i velfungerende rammer, mens I også kan vælge at sætte jeres eget præg løbende. I hvert fald er indretningen god med masser af brugbare rum. Lige nu rummer huset tre værelser, hvor det ene naturligt kan opdeles i to, og hertil kommer et pænt badeværelse samt et opdateret køkken - begge med gulvvarme. Stuen er rummelig og indretningsvenlig med god plads til at samles, og huset afrundes på praktisk vis med både entré, bryggers og en mellemgang, der forbinder hjemmet med garagen, så I selv på regnfulde dage kan gå tørskoede ind.
Matriklen strækker sig over hele 11.562 kvadratmeter, og udnyttelsesmulighederne er mange. Der er allerede klargjort et stort areal jord til dyrkning af grøntsager, hvorfor de tidligere beboere har kunnet være selvforsynende det meste af året. Derudover er der et fint udhus, der er oplagt til høns, ligesom selve haven giver rig mulighed for udeliv i ugenerede og solrige rammer. Alternativt kan du vælte huset og udstykke 9 parcelhusgrunde. Lokalplanen er på plads, så du kan bare gå i gang.
Økonomien i boligen
Skal Nykredit Bank ringe for en snak om din boligøkonomi?
Fortæl os, hvornår det passer dig, så ringer en rådgiver fra Nykredit Bank dig op til en uforpligtende snak om dine lånemuligheder. Så er du et skridt tættere på din nye bolig.
Vi bruger dine oplysninger til at forberede samtalen. Læs mere i Nykredit Banks privatlivspolitik
Kontakt

Kontakt
Christian Bjørn
Skal du også sælge?
Kontakt os og få en gratis salgsvurdering, så ved du hvad din bolig er værd.
- Få et hurtigt estimat af salgspris eller en grundig vurdering.
- Få et indblik i, hvad din ejendom er værd på markedet lige nu.
- Find ud af, hvor meget du selv kan købe for, hvis du ønsker at skifte bolig.
Hvor langt er der til nærmeste?
Se hvor lang tid der er mellem denne bolig og en anden adresse
Fakta om Randers Kommune
INDBYGGERE
GRUNDSKYLD
KOMMUNESKAT
SKOLER
BØRNEPASNING
Opret dig i køberkartoteket og få besked om lignende boliger.
Få direkte besked, når der kommer relevante nye boliger til salg, der matcher dine ønsker. Du ser også de boliger, vi får til salg, som vi ikke viser på Nybolig.dk.
Tilpas filtre og opret