Charmerende villa i rolige omgivelser – tæt på by og natur
Drømmer I om et hjem med masser af charme, plads og privatliv? Så er denne villa i Øster Bjerregrav et oplagt valg. Her bor I i en hyggelig og aktiv landsby med kort afstand til både Randers midtby, skøn natur og motorvejsnettet mod Aarhus og Aalborg.
Ejendommen fremstår nydeligt vedligeholdt med charmerende detaljer, der er med til at give huset sit særlige præg. Udefra mødes I af den klassiske, hvide facade med sprossevinduer, som sætter stemningen for den landlige idyl, der kendetegner hele ejendommen. Den store grund på 2.357 m² sikrer masser af plads, privatliv og skønne uderum, der indbyder til både afslapning og leg.
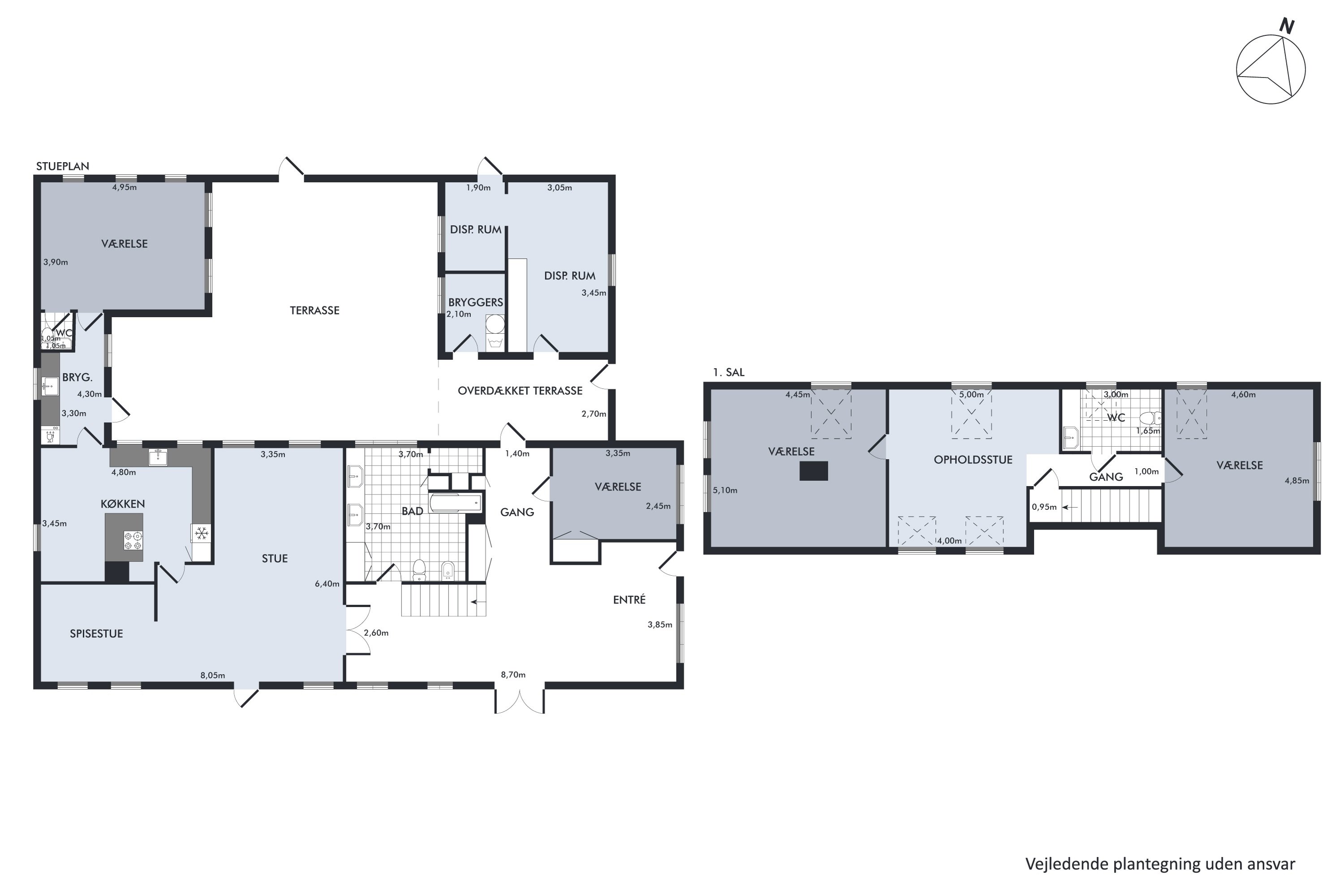
Boligens 218 m² fordeler sig på to etager med en funktionel planløsning. Førstesalen byder på to gode værelser, stort opholdsrum, toilet og charmerende detaljer som fritlagte bjælker og skråvægge med store vinduer, der skaber en lys og indbydende atmosfære. I stueplan finder I en stor rummelig entré, to store værelser, et hyggeligt køkken med tilhørende grovkøkken/bryggers, en dejlig opholdsstue med brændeovn, et stort badeværelse og et gæstetoilet. Den overdækkede terrasse forbinder hovedhuset til udbygningen, hvor I får yderligere to disponible rum med plads til både hobbyværksted og vaskefaciliteter. I midten af hele bygningssættet skabes et fantastisk og hyggeligt gårdmiljø, hvor udelivet for alvor kommer i centrum.
Øster Bjerregrav har alt, hvad I har brug for i hverdagen – skole, daginstitution, købmand, idrætsforening, fitness og en populær aktivitetspark. Derudover har I kort afstand til naturskønne omgivelser ved Fussing Sø, hvor I kan tage en forfriskende dukkert, hoppe på mountainbiken eller nyde en rolig gåtur i skoven. Og når I søger bylivets mange muligheder, ligger Randers midtby kun ti minutters kørsel væk og byder på et væld af butikker, caféer og oplevelser for hele familien. De gode busforbindelser gør det desuden let at komme til og fra byen, og hvis man pendler arbejdsmæssigt er der få minutter til motorvejsnettet.
I får med andre ord en sjældent udbudt ejendom med plads, sjæl og attraktiv beliggenhed for jer, der ønsker at kombinere landidyl og nærhed til byen.
Info - Det er alt andet lige muligt at frastykke en separat byggegrund fra ejendommen, hvis det ønskes.
Økonomien i boligen
Skal Nykredit Bank ringe for en snak om din boligøkonomi?
Fortæl os, hvornår det passer dig, så ringer en rådgiver fra Nykredit Bank dig op til en uforpligtende snak om dine lånemuligheder. Så er du et skridt tættere på din nye bolig.
Vi bruger dine oplysninger til at forberede samtalen. Læs mere i Nykredit Banks privatlivspolitik
Kontakt

Kontakt
Thomas Ankersen
Skal du også sælge?
Kontakt os og få en gratis salgsvurdering, så ved du hvad din bolig er værd.
- Få et hurtigt estimat af salgspris eller en grundig vurdering.
- Få et indblik i, hvad din ejendom er værd på markedet lige nu.
- Find ud af, hvor meget du selv kan købe for, hvis du ønsker at skifte bolig.
Hvor langt er der til nærmeste?
Se hvor lang tid der er mellem denne bolig og en anden adresse
Fakta om Randers Kommune
INDBYGGERE
GRUNDSKYLD
KOMMUNESKAT
SKOLER
BØRNEPASNING
Opret dig i køberkartoteket og få besked om lignende boliger.
Få direkte besked, når der kommer relevante nye boliger til salg, der matcher dine ønsker. Du ser også de boliger, vi får til salg, som vi ikke viser på Nybolig.dk.
Tilpas filtre og opret