Charmerende villa et stenkast fra Limfjorden.
Charmerende villa fra 1916 med orangeri, pergola og frodig haveidyl lige ved Gjøl havn.
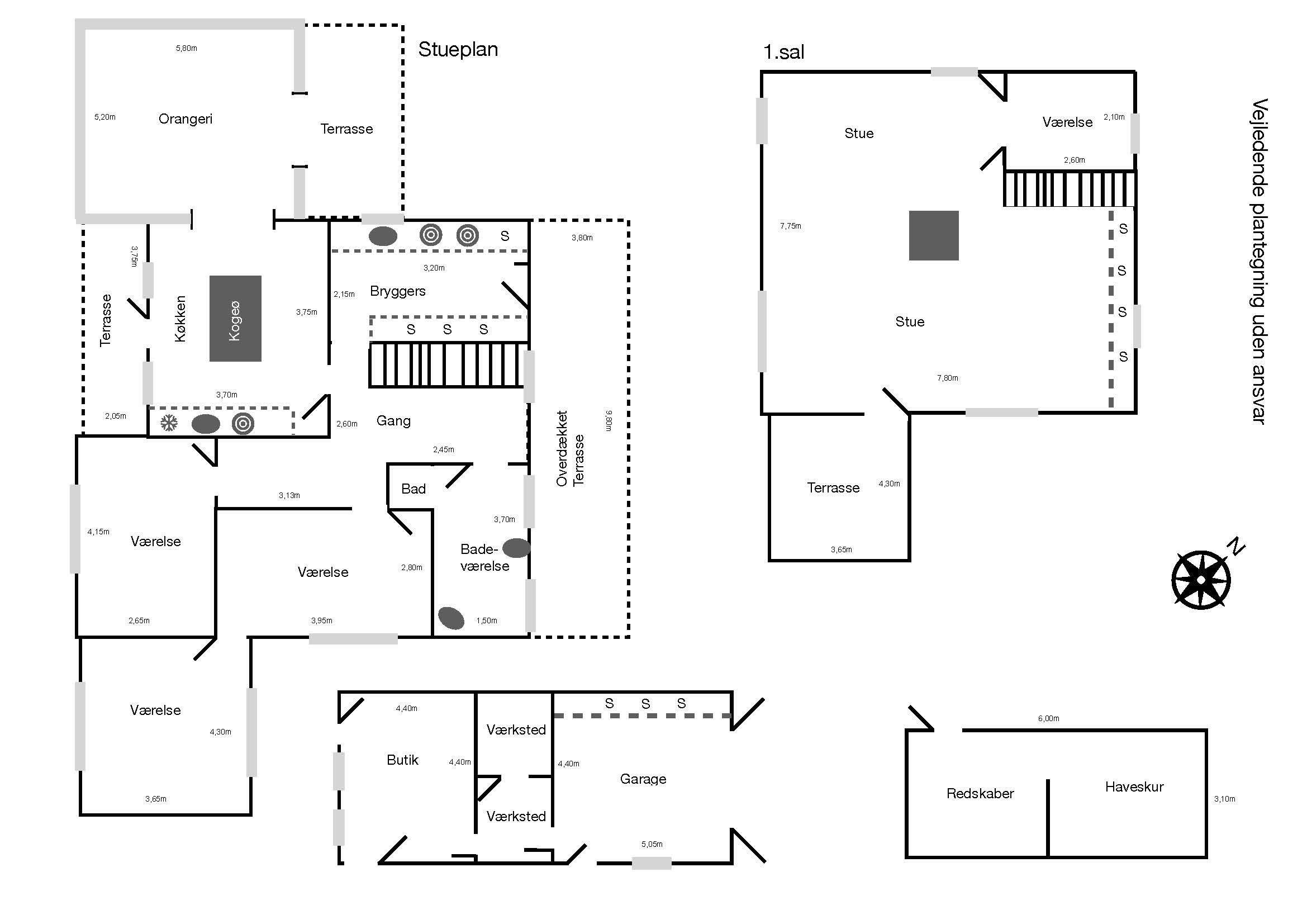
Indvendig
Velholdt og løbende moderniseret villa fra 1916 med masser af sjæl og en stor grund på 1.288 m².
Her får du en indbydende bolig med fantastisk lyst køkken og udestue, 3 soveværelser og et badeværelse.
På 1. sal har du en stor charmerende stue med brændeovn og synlige bjælker samt et fint værelse og udgang til terrasse.
Planløsningen er både praktisk og giver mulighed for endnu flere værelser, hvis behovet er for dette. En renovering i 2022 har givet huset et friskt udtryk, samtidig med at de klassiske detaljer er bevaret.
Boligens hjerte er det lyse køkken/udestue som emmer af lys samtidig med en fantastisk udsigt ud til havnen og Limfjorden.
Udvendig
Fra køkkenet er der udgang til hyggelig terrasse – og i baghaven har man blandt andet en hyggelig pergola – der gør det let at flytte livet udenfor. Haven er frodig og stemningsfuld med plæne, blomster og en lille dam.
Beliggenhed
Beliggenheden tæt på havnen, kroen og lokale faciliteter gør det nemt at kombinere hverdag og fritid i skønne omgivelser. Et hjem med plads til både familieliv, gæster og ro.
Ring og book en fremvisning på 9696 1120.
Økonomien i boligen
Skal Nykredit Bank ringe for en snak om din boligøkonomi?
Fortæl os, hvornår det passer dig, så ringer en rådgiver fra Nykredit Bank dig op til en uforpligtende snak om dine lånemuligheder. Så er du et skridt tættere på din nye bolig.
Vi bruger dine oplysninger til at forberede samtalen. Læs mere i Nykredit Banks privatlivspolitik
Kontakt
 
                Kontakt
Jonas Søndergaard
Skal du også sælge?
Kontakt os og få en gratis salgsvurdering, så ved du hvad din bolig er værd.
- Få et hurtigt estimat af salgspris eller en grundig vurdering.
- Få et indblik i, hvad din ejendom er værd på markedet lige nu.
- Find ud af, hvor meget du selv kan købe for, hvis du ønsker at skifte bolig.
Hvor langt er der til nærmeste?
Se hvor lang tid der er mellem denne bolig og en anden adresse
Fakta om Jammerbugt Kommune
INDBYGGERE
GRUNDSKYLD
KOMMUNESKAT
SKOLER
BØRNEPASNING
Opret dig i køberkartoteket og få besked om lignende boliger.
Få direkte besked, når der kommer relevante nye boliger til salg, der matcher dine ønsker. Du ser også de boliger, vi får til salg, som vi ikke viser på Nybolig.dk.
Tilpas filtre og opret