Stor fuldmuret villa med gulvvarme, solceller og genvex
Villaen, der er fuldmuret og opført i 2001, er bygget med kvalitetsmaterialer og en solid håndværksmæssig finish. Huset er udstyret med moderne faciliteter som solceller, genvex-anlæg, gulvvarme i hele stueetagen og er separat kloakeret. Det er opført i rødbrune teglsten, sorte betontagsten og med mahogni-vinduer. Med energimærke A2015, er boligen top isoleret har en lav varmeudgift.
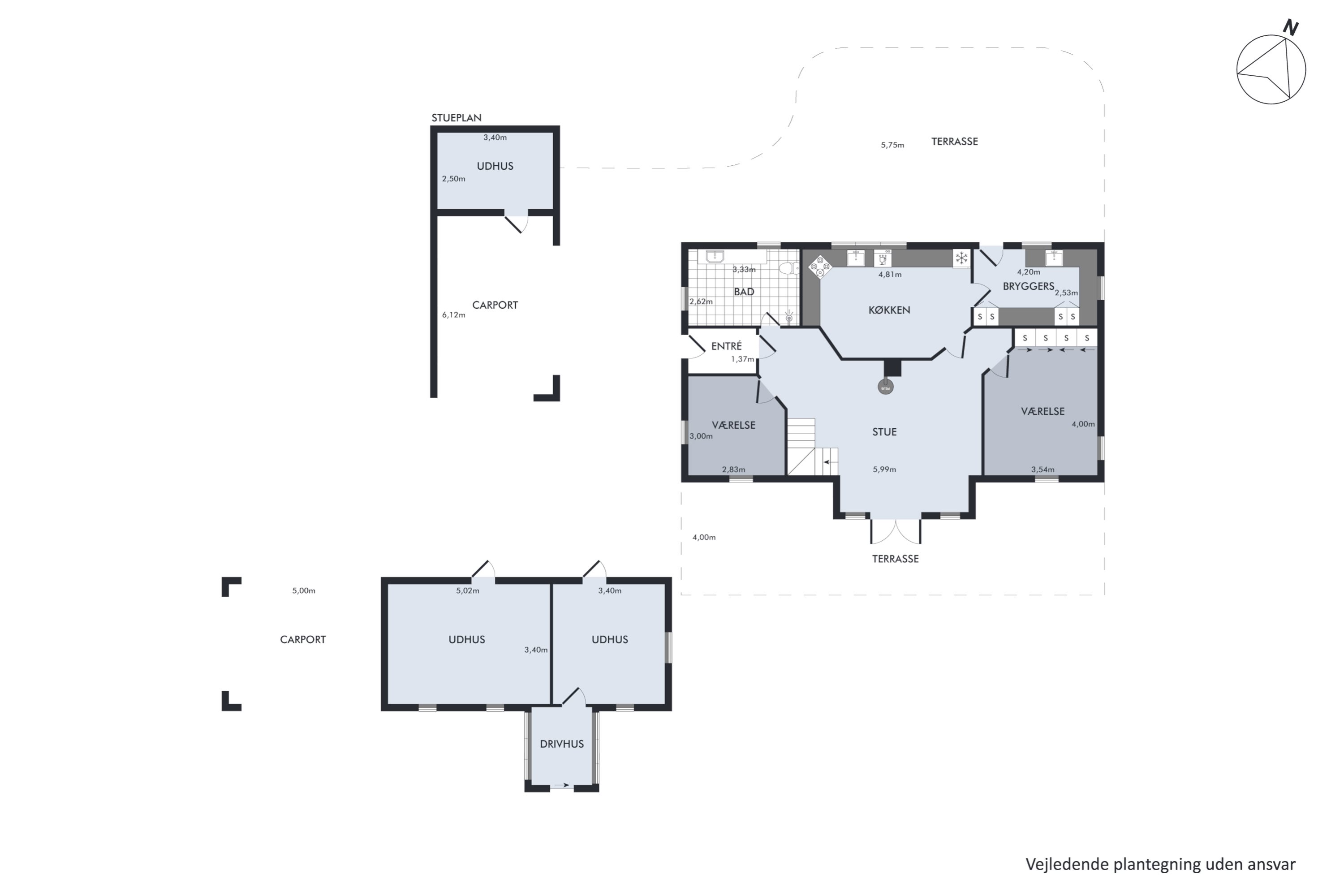
Villaen rummer i alt 193 m² veldisponeret bolig og inkluderer to carporte, flere praktiske skure samt flere hyggelige terrasser og en altan med skøn udsigt fra første sal.
Boligen har gulvvarme i hele stueetagen, og er indrettet med entre, stort badeværelse, skøn stue/spisestue med trægulv og udgang til skøn sydvendt terrasse og trappe til 1. sal. Dejligt stort køkken med plads til spisebord, bryggers med plads til vaskemaskine og tørretumbler. Stort soveværelse med indbyggede skabe samt et værelse/kontor. 1. sal er indrettet med stor stue og altan med en fantastisk udsigt. Derudover er der soveværelse med walk-in, 2 værelser og et ekstra badeværelse.
Denne moderne villa ligger for enden af en fredelig, blind villavej og tilbyder en fantastisk udsigt fra første sal. Ejendommen er placeret på en 1.478 m² stor grund med kort afstand til skole, børnehave og gode offentlige transportforbindelser. I Brovst by finder du et aktivt handelsliv med et bredt udvalg af specialforretninger, dagligvarebutikker samt et sport- og kulturcenter. Aalborg nås på kun ca. 35 minutter i bil.
Ring for en fremvisning af denne skønne bolig på 9696 1120
Økonomien i boligen
Skal Nykredit Bank ringe for en snak om din boligøkonomi?
Fortæl os, hvornår det passer dig, så ringer en rådgiver fra Nykredit Bank dig op til en uforpligtende snak om dine lånemuligheder. Så er du et skridt tættere på din nye bolig.
Vi bruger dine oplysninger til at forberede samtalen. Læs mere i Nykredit Banks privatlivspolitik
Kontakt

Kontakt
Christian Kortegaard
Skal du også sælge?
Kontakt os og få en gratis salgsvurdering, så ved du hvad din bolig er værd.
- Få et hurtigt estimat af salgspris eller en grundig vurdering.
- Få et indblik i, hvad din ejendom er værd på markedet lige nu.
- Find ud af, hvor meget du selv kan købe for, hvis du ønsker at skifte bolig.
Hvor langt er der til nærmeste?
Se hvor lang tid der er mellem denne bolig og en anden adresse
Fakta om Jammerbugt Kommune
INDBYGGERE
GRUNDSKYLD
KOMMUNESKAT
SKOLER
BØRNEPASNING
Opret dig i køberkartoteket og få besked om lignende boliger.
Få direkte besked, når der kommer relevante nye boliger til salg, der matcher dine ønsker. Du ser også de boliger, vi får til salg, som vi ikke viser på Nybolig.dk.
Tilpas filtre og opret