Landlig villa med udskiftet tag
I Rakkebys landlige omgivelser udbydes denne villa, der er opført i 1939 og rummer 100 gode kvadratmeter. Huset har fået udskiftet tag, og inden døre er der også sket moderniseringer. Boligen ledsages af en grund på 891 kvadratmeter, hvor udelivet trives. Velkommen til.
Adressen placerer jer mellem større byer såsom Hjørring og Vrå, og der er således aldrig langt til hverdagens behov. En kort køre- eller bustur er alt, der skal til, før I står ved henholdsvis skole, daginstitution, idrætsfaciliteter eller indkøbsmuligheder. I finder samtlige destinationer inden for en radius af fem kilometer. Det er med andre ord ikke på bekostning af en velfungerende hverdag, at I tilvælger et liv på landet. Hjemme på matriklen nyder I den behagelige udsigt over marklandskabet, som breder sig i alle verdenshjørner.
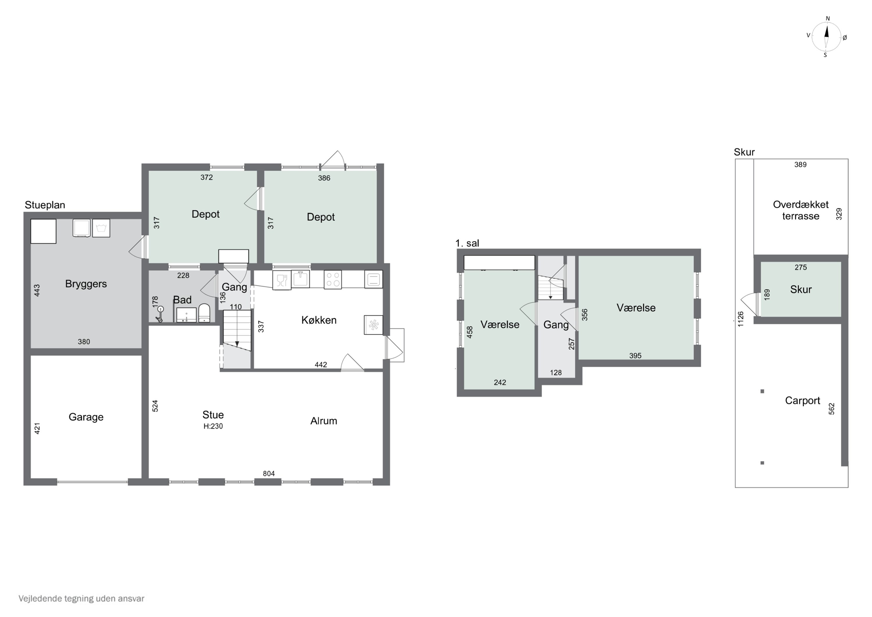
Ret nu blikket mod villaen, hvis formsprog peger i retning af den attraktive murermestervilla. Et udskiftet tag får I også øje på, inden I træder indenfor. Et oplagt sted at starte rundturen er køkkenet, som er et ekstra rummeligt eksemplar med masser af opbevaringsløsninger og god plads til en spisekrog. Tilstødende ligger stuen, hvor fire dannebrogsvinduer på stribe lukker et rart lys ind.
Stueetagen breder sig videre over et badeværelse med brus, et bryggers og to fleksible depotrum. De to værelser finder I tværtimod på førstesalen.
I haven venter en plæne med stedvis beplantning, der har fået lov at vokse sig stor og flot. Der er flere kroge med og uden solskin at gå på opdagelse blandt, og kombinationen af garage og carport sikrer jer ekstra plads og muligheder.
Økonomien i boligen
Skal Nykredit Bank ringe for en snak om din boligøkonomi?
Fortæl os, hvornår det passer dig, så ringer en rådgiver fra Nykredit Bank dig op til en uforpligtende snak om dine lånemuligheder. Så er du et skridt tættere på din nye bolig.
Vi bruger dine oplysninger til at forberede samtalen. Læs mere i Nykredit Banks privatlivspolitik
Kontakt

Kontakt
Jonathan Højmark
Skal du også sælge?
Kontakt os og få en gratis salgsvurdering, så ved du hvad din bolig er værd.
- Få et hurtigt estimat af salgspris eller en grundig vurdering.
- Få et indblik i, hvad din ejendom er værd på markedet lige nu.
- Find ud af, hvor meget du selv kan købe for, hvis du ønsker at skifte bolig.
Hvor langt er der til nærmeste?
Se hvor lang tid der er mellem denne bolig og en anden adresse
Fakta om Hjørring Kommune
INDBYGGERE
GRUNDSKYLD
KOMMUNESKAT
SKOLER
BØRNEPASNING
Opret dig i køberkartoteket og få besked om lignende boliger.
Få direkte besked, når der kommer relevante nye boliger til salg, der matcher dine ønsker. Du ser også de boliger, vi får til salg, som vi ikke viser på Nybolig.dk.
Tilpas filtre og opret