BINDINGSVÆRK OG STRÅTAG - EN TIDSLOMME TÆT PÅ BYMIDTEN
Så har vi fornøjelsen af at udbyde dette charmerende og idylliske bindingsværk hus, der kan dateres tilbage til år 1800.
Her bliver man på mange måder hensat til de gode gamle dage, hvor meget af den gamle arkitekttur er bibeholdt.
Vi befinder os lidt udenfor centrum af Helsingør tæt på Montebello skoven og med indkøb, skoler og institutioner lige om hjørnet.
Villaen på 118 m2 er fordelt på halvandet plan og beliggende på en grøn og beplantningsrig grund, med terrasser på begge sider, så solen kan nemt fanges i dagens lyse timer. Grunden er lukket af med plankeværk hele vejen rundt og der er indkørsel til boligens carport fra den lille stikvej på Rønnebær Allé.
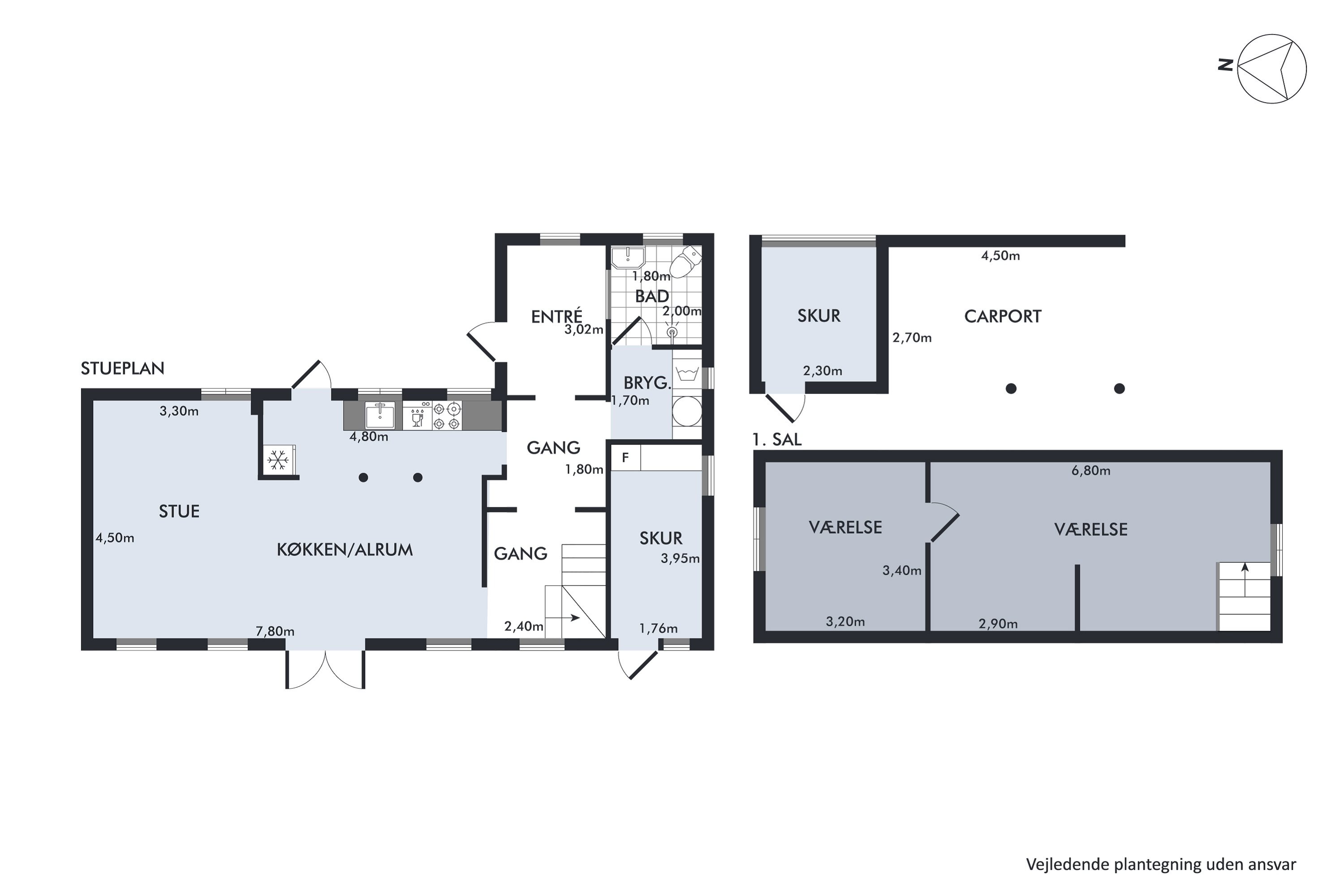
Indendørs en mere klassisk planløsning med leverummet og de praktiske nødvendige i stueplan og på 1. salen finder man boligens værelser.
Boligens samlingspunkt for familien er uden tvivl køkken/alrummet i forbindelse med opholdsstuen, hvorfra der er udgang til terrasserne og den fine have med masser af plads til børneleg og grillaftener. Som sagt klares dagligdagens fornødenheder nemt - Der er bare få meter til nærmeste indkøb, offentlig transport, skole og så er der blot 10 min. til centrum og den gamle bymidte, havnefronten og Kronborg.
Med andre ord alt er indenfor rækkevidde - så søger I et hjem med landlig profil og dejlig luftig atmosfære tæt på det meste – så er I kommet til det helt rette sted.
Økonomien i boligen
Skal Nykredit Bank ringe for en snak om din boligøkonomi?
Fortæl os, hvornår det passer dig, så ringer en rådgiver fra Nykredit Bank dig op til en uforpligtende snak om dine lånemuligheder. Så er du et skridt tættere på din nye bolig.
Vi bruger dine oplysninger til at forberede samtalen. Læs mere i Nykredit Banks privatlivspolitik
Kontakt

Kontakt
Dennis Kolstrup
Skal du også sælge?
Kontakt os og få en gratis salgsvurdering, så ved du hvad din bolig er værd.
- Få et hurtigt estimat af salgspris eller en grundig vurdering.
- Få et indblik i, hvad din ejendom er værd på markedet lige nu.
- Find ud af, hvor meget du selv kan købe for, hvis du ønsker at skifte bolig.
Hvor langt er der til nærmeste?
Se hvor lang tid der er mellem denne bolig og en anden adresse
Fakta om Helsingør Kommune
INDBYGGERE
GRUNDSKYLD
KOMMUNESKAT
SKOLER
BØRNEPASNING
Opret dig i køberkartoteket og få besked om lignende boliger.
Få direkte besked, når der kommer relevante nye boliger til salg, der matcher dine ønsker. Du ser også de boliger, vi får til salg, som vi ikke viser på Nybolig.dk.
Tilpas filtre og opret