Rummelig 1967-villa med varme, lys og stor privat have — plads til livet
Arkitekttegnet gulstensvilla på attraktiv beliggenhed i Østerbro
Denne smukke 1-plans gulstensvilla er tegnet af den landsdelskendte arkitekt Vesterkær Pedersen i 1967 og ligger på en 1.130 kvm. grund i det attraktive Østerbro-kvarter – tæt på Østerbroskolen, skov, svømmecenter og gode indkøbsmuligheder.
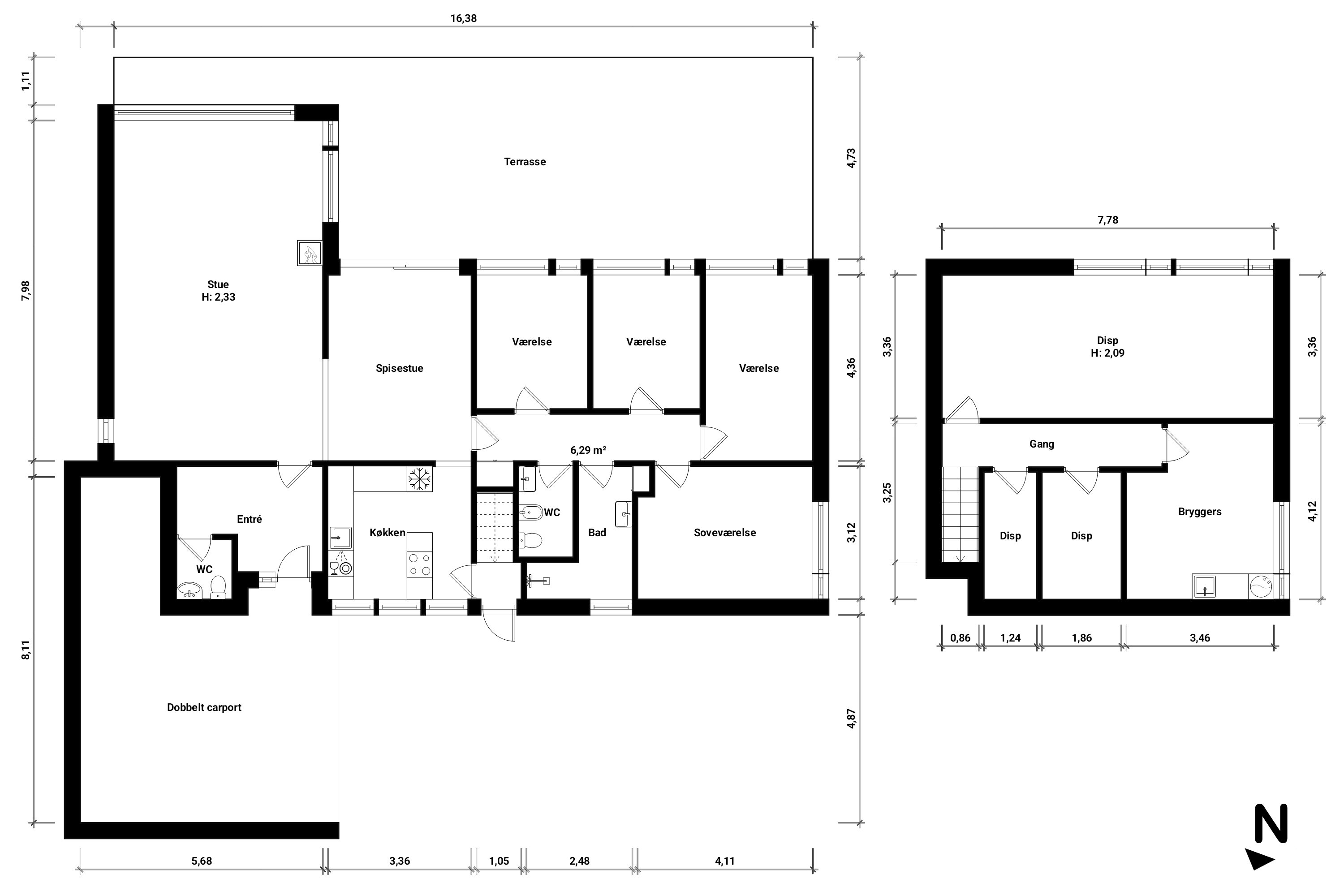
Villaen byder på hele 154 kvm boligareal i ét plan samt 67 kvm højloftet kælder og en 27 kvm dobbelt carport.
Indretning:
Entré med klinkegulv og god garderobeplads
Gæstetoilet med håndvask
Lys og indbydende opholdsstue med parketgulv, stort vinduesparti mod haven og muret pejs med indsats
Spisestue med parketgulv og udgang til sydvendt træterrasse
Køkken med pæne elementer og hårde hvidevarer samt praktisk bagindgang med adgang til kælder
Fordelingsgang med parketgulv og skabsplads
Tre gode børneværelser med parketgulve
Toilet med håndvask og bidet
Flisebadeværelse med muret bruseniche
Stort soveværelse med parketgulv
Stueplan er præget af klassiske detaljer som trælistelofter – nogle hvidmalede, samt delvis gule murstensvægge, der giver boligen et karakterfuldt udtryk.
Kælderen rummer:
Gang
Stort disponibelt aktivitets- eller gilderum
To depotrum
Vaskerum med stik-/afløb til vaskemaskine
Udeliv:
Grunden er anlagt med indkørsel delvist i fliser, skøn sydvendt have med græsplæne, randbeplantning og en stor træterrasse, der indbyder til hyggelige sommeraftener.
Økonomien i boligen
Skal Nykredit Bank ringe for en snak om din boligøkonomi?
Fortæl os, hvornår det passer dig, så ringer en rådgiver fra Nykredit Bank dig op til en uforpligtende snak om dine lånemuligheder. Så er du et skridt tættere på din nye bolig.
Vi bruger dine oplysninger til at forberede samtalen. Læs mere i Nykredit Banks privatlivspolitik
Kontakt

Kontakt
Stig Romme Hansen
Skal du også sælge?
Kontakt os og få en gratis salgsvurdering, så ved du hvad din bolig er værd.
- Få et hurtigt estimat af salgspris eller en grundig vurdering.
- Få et indblik i, hvad din ejendom er værd på markedet lige nu.
- Find ud af, hvor meget du selv kan købe for, hvis du ønsker at skifte bolig.
Hvor langt er der til nærmeste?
Se hvor lang tid der er mellem denne bolig og en anden adresse
Fakta om Guldborgsund Kommune
INDBYGGERE
GRUNDSKYLD
KOMMUNESKAT
SKOLER
BØRNEPASNING
Opret dig i køberkartoteket og få besked om lignende boliger.
Få direkte besked, når der kommer relevante nye boliger til salg, der matcher dine ønsker. Du ser også de boliger, vi får til salg, som vi ikke viser på Nybolig.dk.
Tilpas filtre og opret