Pænt gulstenshus med virkelig hyggelig have i Søllinge
Gulstenshuset fra 1988 på Kirketoften 15 ligger trygt og roligt på en lukket vej, hvilket I kan nyde i behagelige rammer på den 818 m2 grund, som tilmed er med carport i indkørslen. Her får I 120 m2 bolig med en kælder af samme størrelse, som er velindrettet og delvist over jordhøjde. I har således masser af kvadratmeter samt opbevarings- og indretningsmuligheder.
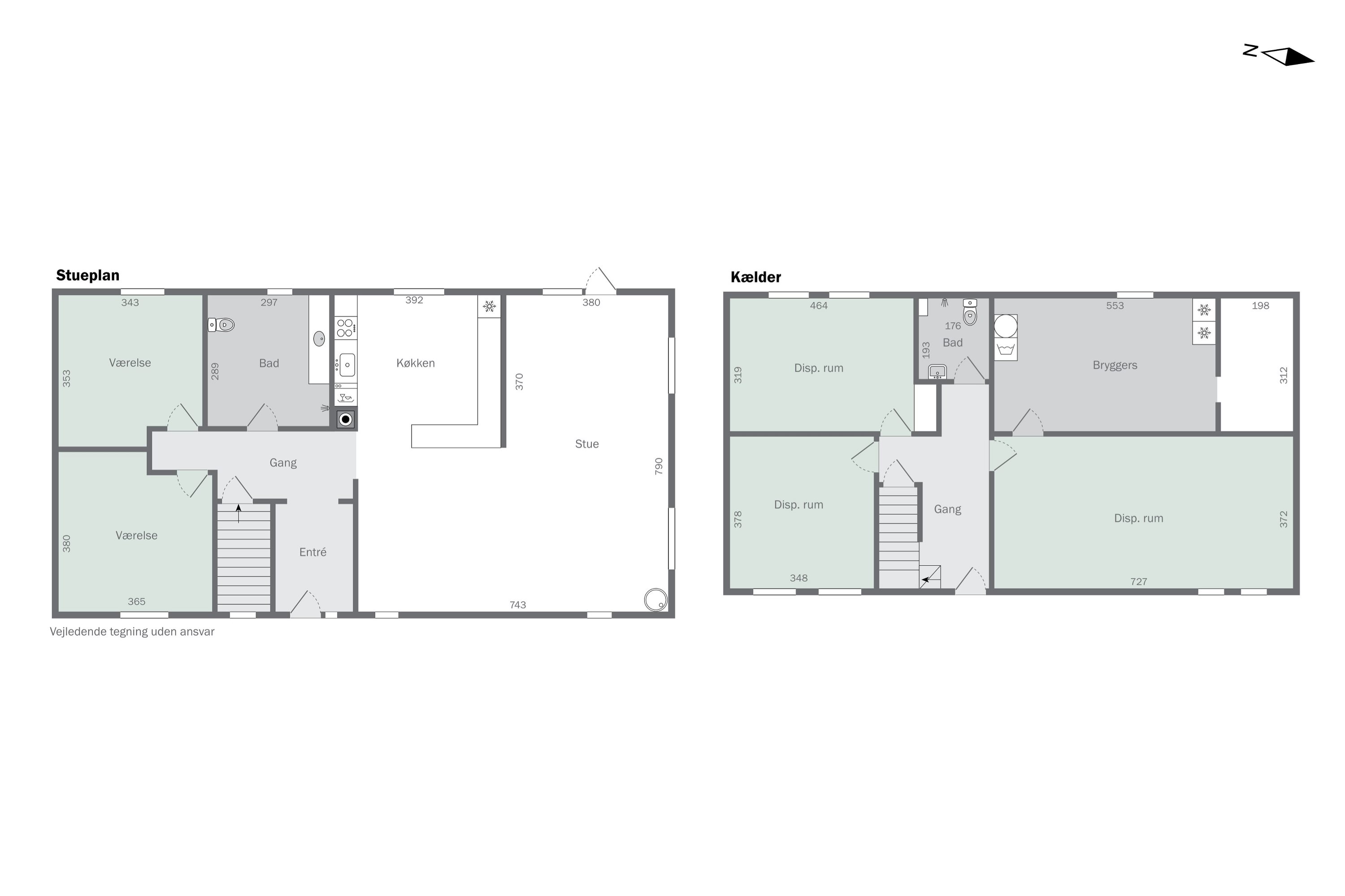
Der er en overskuelig planløsning, hvor boligkvadratmeterne fordeler sig over et plan. Her ligger der nemlig et stort køkken i åben forbindelse med den rummelige vinkelstue. Det giver et opholdsrum med en dejlig luftighed og atmosfære, som særligt kendetegnes ved det pæne gulv, den stemningssættende brændeovn og det karakteristiske køkken.
I modsatte ende af hjemmet finder I med indgang fra fordelingsgangen hjemmets badeværelse samt to gode værelser. Det gør således huset oplagt til både den enlige, parret eller den lille familie. Samtidig kan hverdagens praktik klares i kælderen, hvor I har et stort bryggers, tre disponible rum og endnu et badeværelse.
Haven er rigtig rar med flere høje træer, der giver liv og skygge på grunden. Samtidig er der anlagt en rigtig fin bålplads med tilhørende brændeskur, hvorfor I kan nyde mange hyggelige aftener udendørs. Dertil kommer den hævede træterrasse ved huset, som I kan tilgå direkte fra stuen.
Som en del af et lukket vænge har Kirketoften 15 en børnevenlig og fredelig beliggenhed i Søllinge, der er en lille landsby med gadekær, kirke og lokalstemning. Byen huser selv dagtilbud, men ellers er både Ringe, Ryslinge, Årslev og Ferritslev i kort køreafstand, hvilket giver nem adgang til skoler og forskellige indkøbsmuligheder.
Økonomien i boligen
Skal Nykredit Bank ringe for en snak om din boligøkonomi?
Fortæl os, hvornår det passer dig, så ringer en rådgiver fra Nykredit Bank dig op til en uforpligtende snak om dine lånemuligheder. Så er du et skridt tættere på din nye bolig.
Vi bruger dine oplysninger til at forberede samtalen. Læs mere i Nykredit Banks privatlivspolitik
Kontakt

Kontakt
Jesper Greve
Skal du også sælge?
Kontakt os og få en gratis salgsvurdering, så ved du hvad din bolig er værd.
- Få et hurtigt estimat af salgspris eller en grundig vurdering.
- Få et indblik i, hvad din ejendom er værd på markedet lige nu.
- Find ud af, hvor meget du selv kan købe for, hvis du ønsker at skifte bolig.
Hvor langt er der til nærmeste?
Se hvor lang tid der er mellem denne bolig og en anden adresse
Fakta om Faaborg-Midtfyn Kommune
INDBYGGERE
GRUNDSKYLD
KOMMUNESKAT
SKOLER
BØRNEPASNING
Opret dig i køberkartoteket og få besked om lignende boliger.
Få direkte besked, når der kommer relevante nye boliger til salg, der matcher dine ønsker. Du ser også de boliger, vi får til salg, som vi ikke viser på Nybolig.dk.
Tilpas filtre og opret