Stor og velrenoveret villa i Hjordkær
Velkommen til Kirkegade 77, en stor og rummelig villa i det naturskønne Hjordkær, syd for Rødekro. 
 
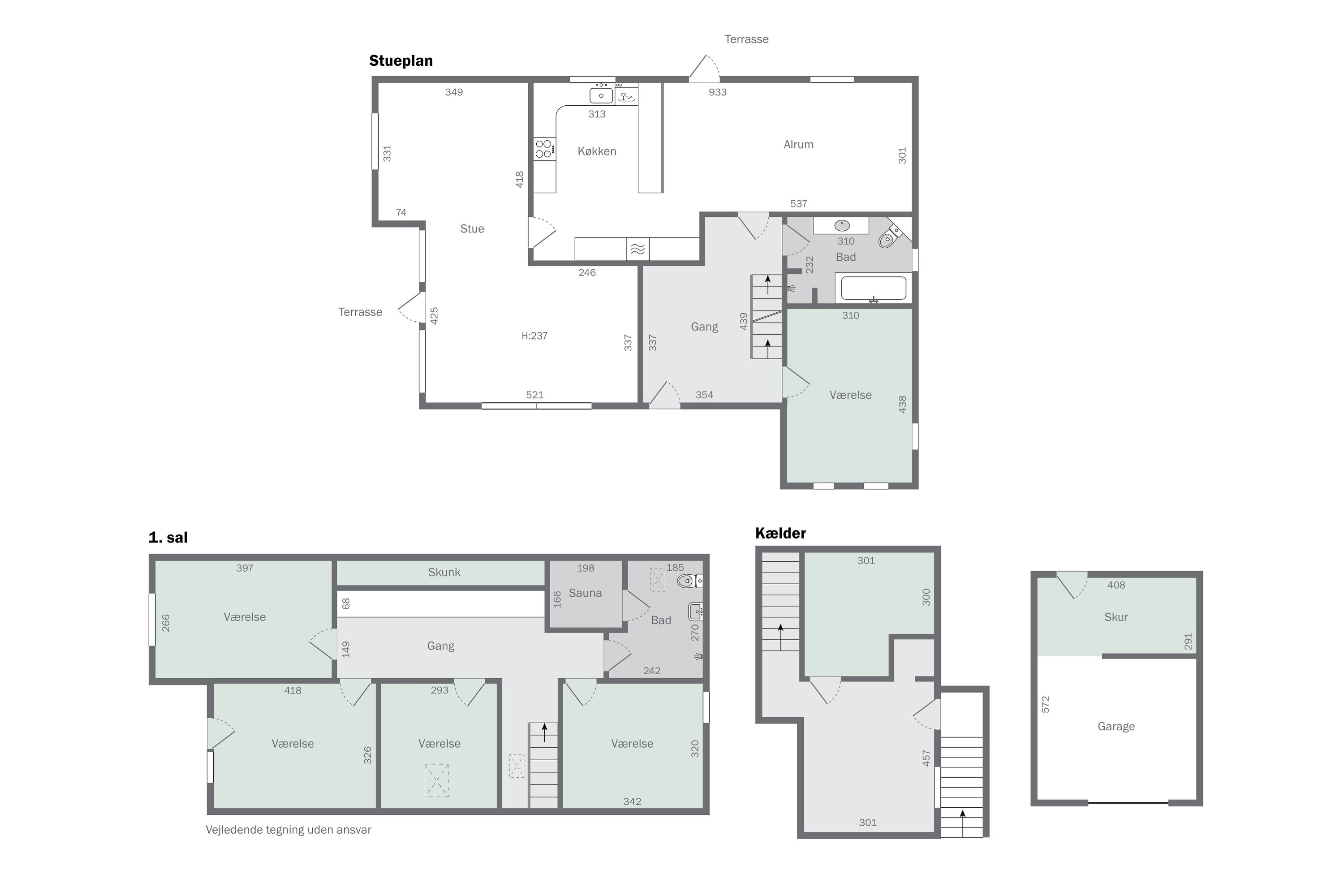
Ejendommen fra 1963 er gennemrenoveret og klar til at byde jer velkommen i trygge rammer. Med et boligareal på 202 kvadratmeter, en kælder på 21 kvadratmeter og en grundstørrelse på 1.000 kvadratmeter, er der plads til hele familien. Villaen er efterisoleret og har gennemgået flere større istandsættelser de seneste år, herunder nyt tagpap på garagen i 2022, ny træterrasse og overdækket terrasse i 2023 og nyt varmeveksleranlæg samt styresystem til gulvvarmen i stueetagen.
 
Desuden er der installeret centralstøvsuger både i stuen og på første sal. Hjemmet har et lækkert køkken-alrum med direkte adgang til en dejlig træterrasse. Det stilrene HTH-køkken er lyst og åbent. Stuen er rummelig og har udgang til en overdækket terrasse, hvor I kan nyde aftensolen. Derudover har stueplanen et stort værelse samt et badeværelse med både badekar og bruseniche.
 
På første sal finder I en repos med skabsvæg og fire værelser, hvoraf det ene har udgang til en sydvendt altan. Badeværelset på denne etage har adgang til en sauna. Udendørs venter en dejlig, lukket have med flere skønne terrasse fra 2023, og havens placering op til skoven gør at man ikke bemærker, at man er i byen. 
 
Haven er indhegnet, så jeres børn og kæledyr kan færdes frit. Der er også en garage med plads til et lille værksted.
 
Hjordkær er en by i udvikling med fokus på børnefamilier og er omkranset af åbne marker og skovarealer. Den hyggelige by har både pasningsmuligheder, den lokale Hjordkær Skole og Brugsen, hvor I kan klare hverdagens indkøb. Samtidig er der fra adressen let adgang til motorvejsnettet, og I har blot et kvarter i bil både til Rødekro og Aabenraa. Der er cykelsti imellem Hjordkær og Rødekro.
Økonomien i boligen
Skal Nykredit Bank ringe for en snak om din boligøkonomi?
Fortæl os, hvornår det passer dig, så ringer en rådgiver fra Nykredit Bank dig op til en uforpligtende snak om dine lånemuligheder. Så er du et skridt tættere på din nye bolig.
Vi bruger dine oplysninger til at forberede samtalen. Læs mere i Nykredit Banks privatlivspolitik
Kontakt
 
                Kontakt
Nicko Jessen
Skal du også sælge?
Kontakt os og få en gratis salgsvurdering, så ved du hvad din bolig er værd.
- Få et hurtigt estimat af salgspris eller en grundig vurdering.
- Få et indblik i, hvad din ejendom er værd på markedet lige nu.
- Find ud af, hvor meget du selv kan købe for, hvis du ønsker at skifte bolig.
Hvor langt er der til nærmeste?
Se hvor lang tid der er mellem denne bolig og en anden adresse
Fakta om Aabenraa Kommune
INDBYGGERE
GRUNDSKYLD
KOMMUNESKAT
SKOLER
BØRNEPASNING
Opret dig i køberkartoteket og få besked om lignende boliger.
Få direkte besked, når der kommer relevante nye boliger til salg, der matcher dine ønsker. Du ser også de boliger, vi får til salg, som vi ikke viser på Nybolig.dk.
Tilpas filtre og opret