Charmerende villa med plads til familien
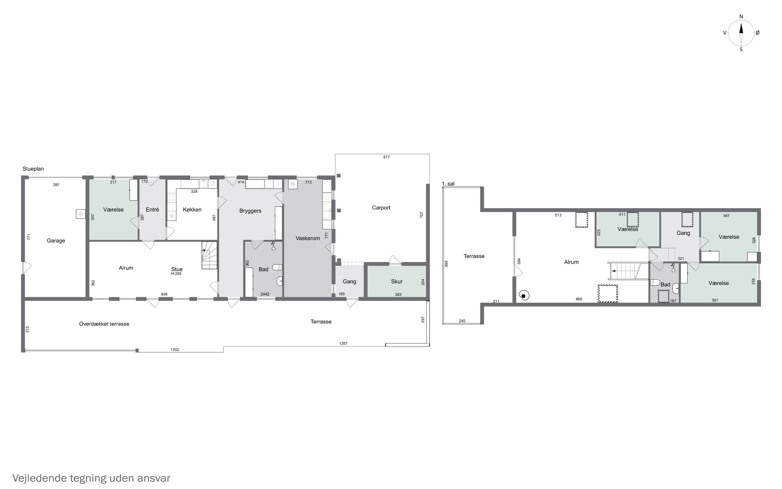
Velkommen til denne charmerende villa fra 1867, der med sin rummelige indretning og indbydende atmosfære er klar til at blive jeres nye hjem. Med hele 243 kvadratmeter fordelt på seks værelser og to badeværelser, tilbyder denne bolig masser af plads til både privatliv og samvær. Den varme og hyggelige stemning, der præger boligen, gør det let at forestille sig livets små øjeblikke, fra morgenkaffen i køkkenet til hyggelige stunder i stuen.Indretningen byder på en åben planløsning, hvor stuen og køkkenet smelter sammen i et lyst og indbydende rum. De store vinduer lader det naturlige lys strømme ind, hvilket skaber en varm atmosfære, der indbyder til afslapning. Køkkenet er funktionelt indrettet med gode arbejdsflader og plads til en spisestue, hvor hele familien kan samles. De seks værelser giver mulighed for at indrette både børneværelser, hjemmekontor og gæsteværelser, alt efter jeres behov.En af villaens store fordele er den skønne terrasse, der strækker sig ud mod haven. Her kan I nyde solrige dage og lange sommeraftener, mens børnene leger i den velholdte have. Den frodige grund på 1854 kvadratmeter giver masser af plads til udendørs aktiviteter og sociale sammenkomster, hvilket gør det til det perfekte sted for familielivet.Beliggenheden er ideel for børnefamilier, med kort afstand til grønne områder, skoler og indkøbsmuligheder. Området byder på et rigt udbud af aktiviteter og faciliteter, der gør hverdagen nem og bekvem. I kan nyde naturen lige uden for døren, mens I stadig har nem adgang til byens liv og puls.Denne villa er en sjælden mulighed for at erhverve et hjem med både charme og plads til at vokse. Giv jer selv muligheden for at opleve denne fantastiske bolig – bestil en fremvisning i dag, og lad drømmen om et nyt hjem blive til virkelighed!
Økonomien i boligen
Skal Nykredit Bank ringe for en snak om din boligøkonomi?
Fortæl os, hvornår det passer dig, så ringer en rådgiver fra Nykredit Bank dig op til en uforpligtende snak om dine lånemuligheder. Så er du et skridt tættere på din nye bolig.
Vi bruger dine oplysninger til at forberede samtalen. Læs mere i Nykredit Banks privatlivspolitik
Kontakt

Kontakt
Andreas Thomsen Nøhr
Skal du også sælge?
Kontakt os og få en gratis salgsvurdering, så ved du hvad din bolig er værd.
- Få et hurtigt estimat af salgspris eller en grundig vurdering.
- Få et indblik i, hvad din ejendom er værd på markedet lige nu.
- Find ud af, hvor meget du selv kan købe for, hvis du ønsker at skifte bolig.
Hvor langt er der til nærmeste?
Se hvor lang tid der er mellem denne bolig og en anden adresse
Fakta om Aabenraa Kommune
INDBYGGERE
GRUNDSKYLD
KOMMUNESKAT
SKOLER
BØRNEPASNING
Opret dig i køberkartoteket og få besked om lignende boliger.
Få direkte besked, når der kommer relevante nye boliger til salg, der matcher dine ønsker. Du ser også de boliger, vi får til salg, som vi ikke viser på Nybolig.dk.
Tilpas filtre og opret