Skab minder i denne charmerende villa
Ejendommen gennemgik i 2014 en omfattende renovering med fokus på moderne komfort og energieffektivitet. Der er foretaget en lang række forbedringer – herunder nye installationer, efterisolering, netpuds, og installation af en luft-til-vand varmepumpe – hvilket har givet boligen energimærke B.
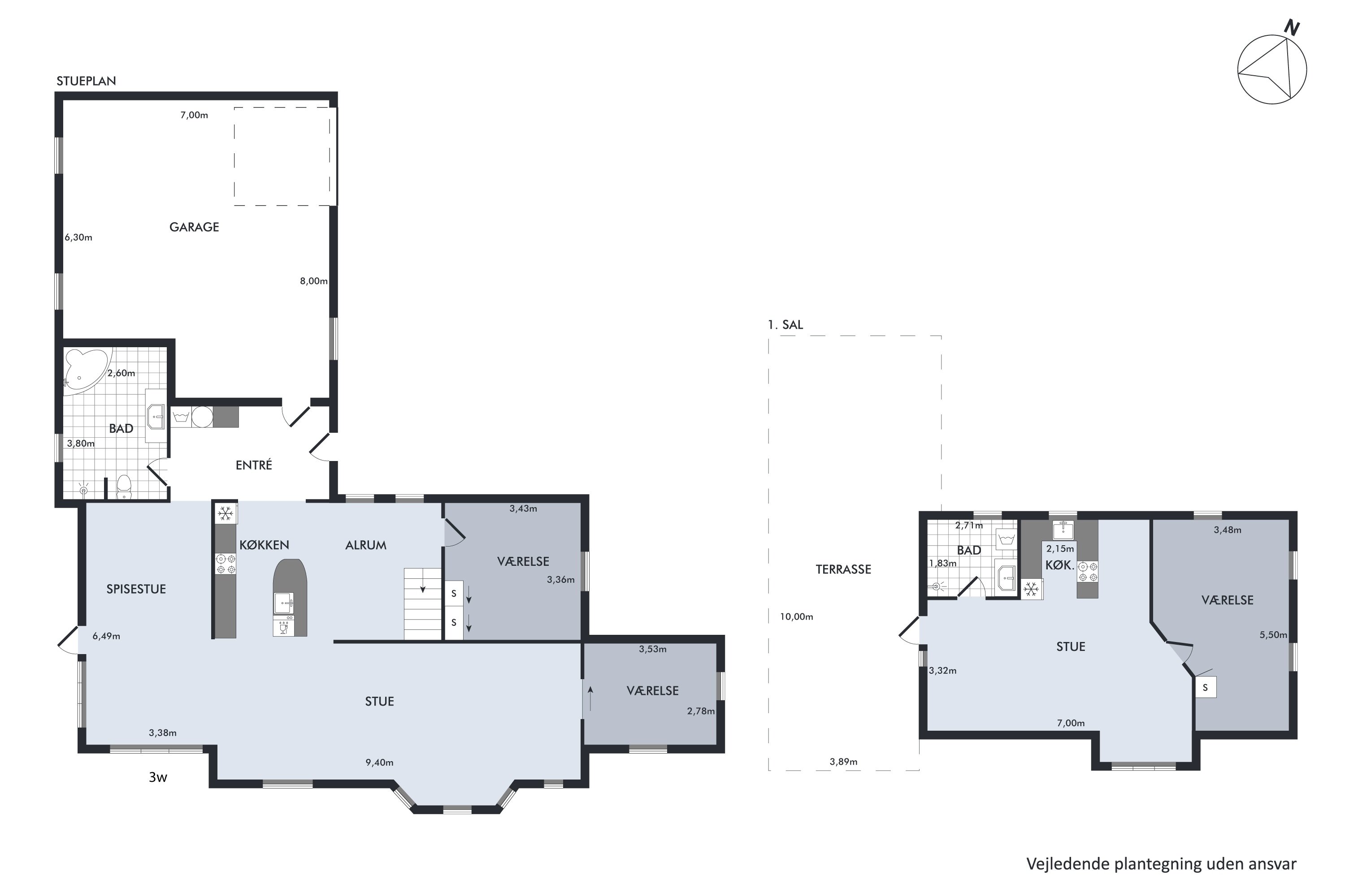
Villaen har et boligareal på hele 204 m² og rummer mulighed for to selvstændige boligenheder – ideelt til den store familie, flere generationer under samme tag eller udlejning. Der er desuden opført en 60 m² stor garage med gulvvarme og elport.
Indvendigt fremstår boligen lys og moderne. I stueplan er der gulvvarme - undtagen i værelset mod øst - og indretningen omfatter: stor spisestue, åbent køkken/alrum med trappe til førstesalen, hyggelig stue med masser af lys, rummeligt badeværelse med bruseniche og spabad, soveværelse, ekstra værelse samt et praktisk bryggers med klinkegulv. Her er direkte adgang til garagen.
Førstesalen er indrettet som en selvstændig lejlighed med eget køkken, badeværelse, soveværelse og stue – sidstnævnte med udgang til en skøn træterrasse med udsigt over Limfjorden. Her kan man nyde en sommeraften med grillen eller slappe af med en kop kaffe. Lejligheden er oplagt til teenageren, gæster eller udlejning.
Denne skønne og indflytningsklare villa i to plan byder på en enestående udsigt over Limfjorden og ligger naturskønt i Attrup – tæt på lystbådehavnen og med nem adgang til områdets smukke natur, bl.a. Kokkedal Slot og Alsbjerg Bakker. Der er kun ca. 5 km til Skovsgård, hvor du finder skole, børnehave, idrætshal, indkøb og offentlig transport.
Grunden er overskuelig og nem at holde – blot 516 m² – og byder på en fantastisk udsigt over vandet.
Økonomien i boligen
Skal Nykredit Bank ringe for en snak om din boligøkonomi?
Fortæl os, hvornår det passer dig, så ringer en rådgiver fra Nykredit Bank dig op til en uforpligtende snak om dine lånemuligheder. Så er du et skridt tættere på din nye bolig.
Vi bruger dine oplysninger til at forberede samtalen. Læs mere i Nykredit Banks privatlivspolitik
Kontakt

Kontakt
Christian Kortegaard
Skal du også sælge?
Kontakt os og få en gratis salgsvurdering, så ved du hvad din bolig er værd.
- Få et hurtigt estimat af salgspris eller en grundig vurdering.
- Få et indblik i, hvad din ejendom er værd på markedet lige nu.
- Find ud af, hvor meget du selv kan købe for, hvis du ønsker at skifte bolig.
Hvor langt er der til nærmeste?
Se hvor lang tid der er mellem denne bolig og en anden adresse
Fakta om Jammerbugt Kommune
INDBYGGERE
GRUNDSKYLD
KOMMUNESKAT
SKOLER
BØRNEPASNING
Opret dig i køberkartoteket og få besked om lignende boliger.
Få direkte besked, når der kommer relevante nye boliger til salg, der matcher dine ønsker. Du ser også de boliger, vi får til salg, som vi ikke viser på Nybolig.dk.
Tilpas filtre og opret