Velkommen til Møllergården - idyllisk ejendom med god plads og skøn udsigt
Velkommen til Møllergården – en idyllisk ejendom beliggende lidt udenfor Vebbestrup, hvor roen og naturen går hånd i hånd. Her finder du et skønt stuehus omgivet af tre længer, der tilsammen danner en charmerende gårdsplads med terrasseområde og som indbyder til et liv på landet med masser af atmosfære.
Ejendommen ligger helt ugenert og indbyder til et liv i fredelige omgivelser, mens de åbne marker giver en imponerende udsigt, du kan nyde hver dag.
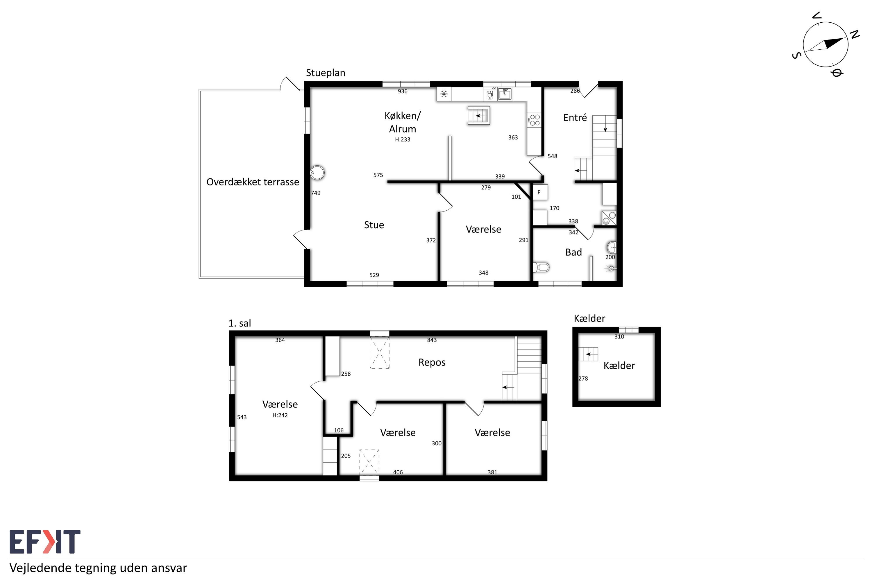
Boligen rummer i alt 170 kvm fordelt på to etager og står placeret på en stor grund på hele 4542 kvm. Allerede i entréen mærker du, at her er tænkt på både praktik og indretning – med rummelig trappeopgang, skabsplads, vaskesøjle og adgang til et lyst badeværelse med klinker og bruseniche.
Fra entréen træder du desuden ind i det store køkken-alrum, som fremstår indbydende og opdateret med køkkenelementer i landlig stil fra 2019 samt gulve i køkken, alrum og stuen. De hvide fronter og mørke bordplader giver køkkenet et tidløst udtryk, og de gode arbejdsforhold med masser af skabs- og skuffeplads gør madlavningen til en fornøjelse.
Alrummet har plads til et stort spisebord, perfekt til både hverdag og festlige sammenkomster. I åben forbindelse ligger den hyggelige stue, hvor brændeovnen skaber en skøn stemning og varme. Herfra er der også udgang til en sydvendt overdækket terrasse, som giver dig mulighed for at forlænge udesæsonen. I stueplan finder du desuden et værelse, der kan anvendes til flere formål.
På førstesalen finder du en rummelig repos og tre værelser, der kan indrettes som børneværelser, kontor eller hobbyrum – alt efter behov.
Ejendommens længer byder på mange muligheder. Her er blandt andet en stor gildesal med brændeovn, som er perfekt til at samle familie og venner, samt udhusbygninger med plads til værksted, maskiner eller opbevaring.
Haven er anlagt med både drivhus, et stort græsareal og en opvokset beplantning af træer og buske. Her er der masser af plads til leg, udfoldelse eller evt. etablering af køkkenhave.
Beliggenheden gør hverdagen nem, da motorvej E45 er let tilgængelig. I Vebbestrup møder du et aktivt foreningsliv og gode faciliteter som børnehaven Solstrålen, Vebbestrup Multiforum og den populære Solhverv Privatskole. Byen er også kendt for Vebbestrup Flødeis, som tiltrækker besøgende langvejsfra på de varme sommerdage. For skolebørn er der skolebus til Valsgård Skole, og blot 10 minutters kørsel væk ligger Hobro med en hyggelig gågade, smukt havnemiljø og gode indkøbsmuligheder.
Økonomien i boligen
Skal Nykredit Bank ringe for en snak om din boligøkonomi?
Fortæl os, hvornår det passer dig, så ringer en rådgiver fra Nykredit Bank dig op til en uforpligtende snak om dine lånemuligheder. Så er du et skridt tættere på din nye bolig.
Vi bruger dine oplysninger til at forberede samtalen. Læs mere i Nykredit Banks privatlivspolitik
Kontakt

Kontakt
Ole Rishøj
Skal du også sælge?
Kontakt os og få en gratis salgsvurdering, så ved du hvad din bolig er værd.
- Få et hurtigt estimat af salgspris eller en grundig vurdering.
- Få et indblik i, hvad din ejendom er værd på markedet lige nu.
- Find ud af, hvor meget du selv kan købe for, hvis du ønsker at skifte bolig.
Hvor langt er der til nærmeste?
Se hvor lang tid der er mellem denne bolig og en anden adresse
Fakta om Mariagerfjord Kommune
INDBYGGERE
GRUNDSKYLD
KOMMUNESKAT
SKOLER
BØRNEPASNING
Opret dig i køberkartoteket og få besked om lignende boliger.
Få direkte besked, når der kommer relevante nye boliger til salg, der matcher dine ønsker. Du ser også de boliger, vi får til salg, som vi ikke viser på Nybolig.dk.
Tilpas filtre og opret