Lys og rummelig villa med skøn terrasse
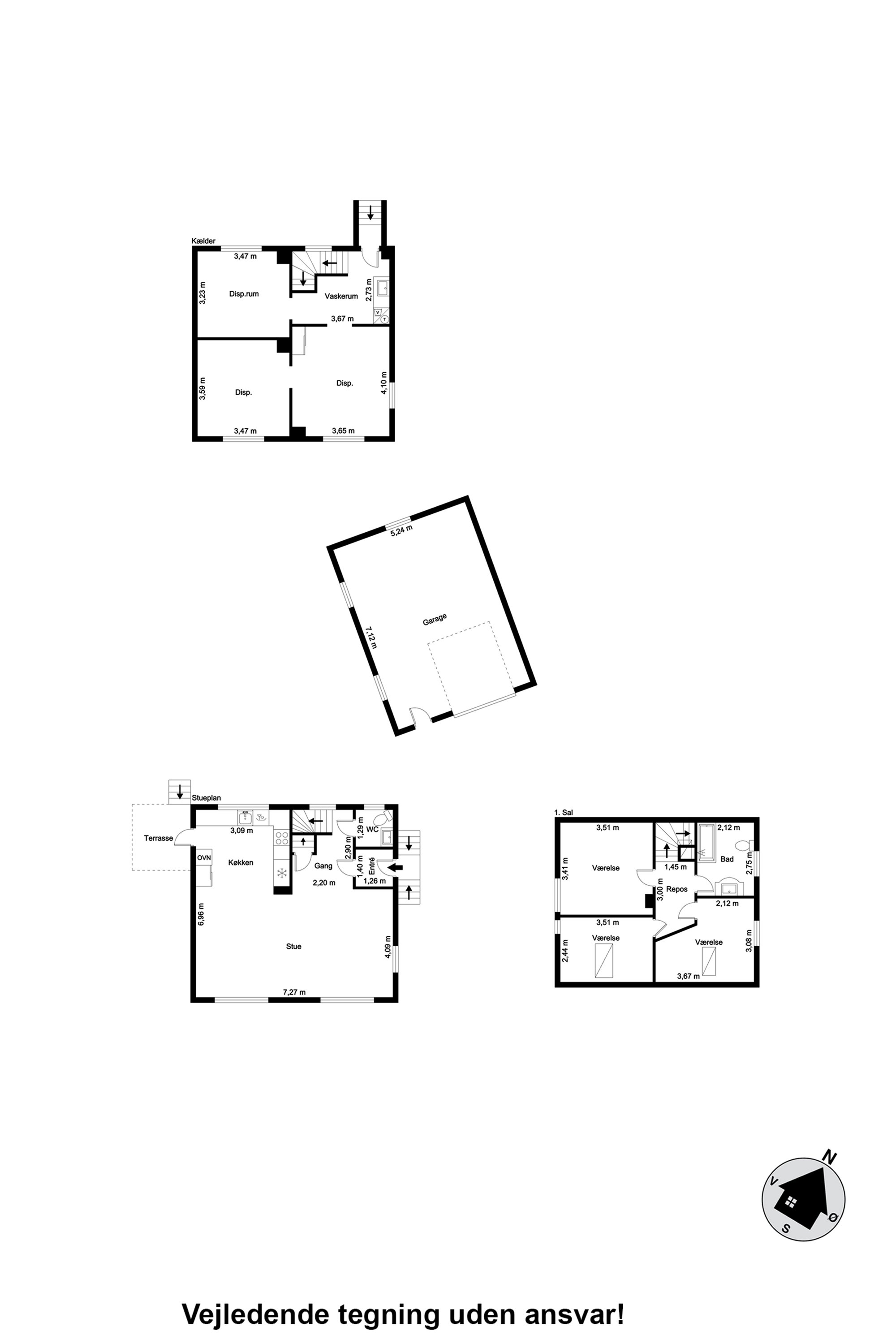
Velkommen til denne indflytningsklare villa, her får du 100 kvm fordelt på halvanden plan, og med en god kælder på 60 kvm, beliggende på en 1460 kvadratmeter stor grund.
Villaen er i rigtig god stand, den blev i 2019 renoveret, hvor der blev lavet gulvvarme i stueplan og i 2020 blev taget skiftet.
I stueplan træder man ind i en mindre entre og videre ind til den store gang, som giver adgang til stueplan, 1. sal, et mindre gæstetoilet samt kælder. Der er direkte indgang til den store rummelige stue, og videre ind til køkkenalrummet. Planløsningen er god, og giver mulighed for at sammenværd med familie og venner. 1. sal tilbyder 3 gode værelser samt et badeværelse med brus og badekar. Kælderen har 3 gode disponible rum samt et vaskerum.
Huset er perfekt til børnefamilie med plads til alle. Villaen har en flisebelagt indkørsel, samt stor flot flise terrasse nem og overskuelig have med udsigt ud til marker. Der er bygget skur og stor opvarmet garage med plads til bil og cykler.
Økonomien i boligen
Skal Nykredit Bank ringe for en snak om din boligøkonomi?
Fortæl os, hvornår det passer dig, så ringer en rådgiver fra Nykredit Bank dig op til en uforpligtende snak om dine lånemuligheder. Så er du et skridt tættere på din nye bolig.
Vi bruger dine oplysninger til at forberede samtalen. Læs mere i Nykredit Banks privatlivspolitik
Kontakt

Kontakt
Casper Vilsen Simonsen
Skal du også sælge?
Kontakt os og få en gratis salgsvurdering, så ved du hvad din bolig er værd.
- Få et hurtigt estimat af salgspris eller en grundig vurdering.
- Få et indblik i, hvad din ejendom er værd på markedet lige nu.
- Find ud af, hvor meget du selv kan købe for, hvis du ønsker at skifte bolig.
Hvor langt er der til nærmeste?
Se hvor lang tid der er mellem denne bolig og en anden adresse
Fakta om Hjørring Kommune
INDBYGGERE
GRUNDSKYLD
KOMMUNESKAT
SKOLER
BØRNEPASNING
Opret dig i køberkartoteket og få besked om lignende boliger.
Få direkte besked, når der kommer relevante nye boliger til salg, der matcher dine ønsker. Du ser også de boliger, vi får til salg, som vi ikke viser på Nybolig.dk.
Tilpas filtre og opret