Velholdt villa med rigtig god garage/værksted
Drømmer du om en velholdt villa med et stort værksted, og på samme tid masser af plads til hele familien? Så er Sydtoften 1 i Aale lige noget for dig. 
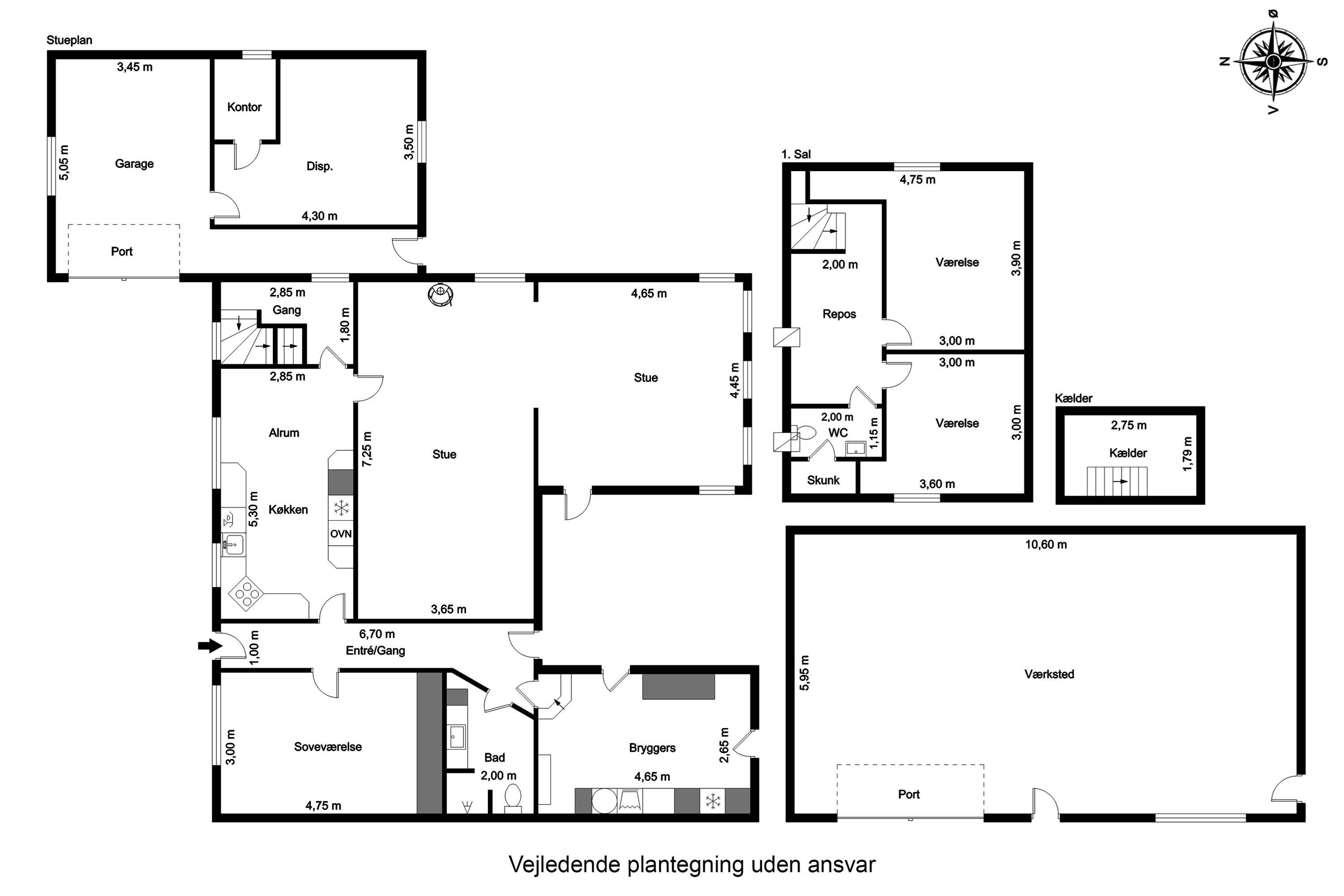
Boligens indretning
Bryggerset i denne charmerende villa byder på masser af plads og rummelighed. Her er der god plads til opbevaring af fod- og overtøj. I forlængelse af bryggerset finder man husets pæne badeværelse med brus. Fortsætter man ned af gangen findes husets entre, og husets første af tre værelser. Af den årsag, er der rig mulighed for, at indrette sig med forældre- og børneafdeling hver for sig. Fortsætter man ind i 
huset, finder man her husets hyggelige køkken. Køkkenet fremstår i god stand, og her er plads nok til at placere et spiseplads. Hernæst husets 2 store opholdsstuer, hvoraf den ene er med pillebrændeovn. Her åbner huset sig virkelig op, og giver plads til mange hyggelige stunder, hvor hele familien kan være samlet. 
Husets 1. sal byder på et repos, 2 rummelige værelser og netop etableret toilet. En 1. sal der med fordel kan indrettes som børnenes egen afdeling. 
Til boligen findes en garage med direkte adgang til et 2-delt disponibelt rum der f.eks. kan bruges som kontor eller til opbevaring. Bagerst på grunden, findes også en stor garage på hele 69 m2 med masser af plads til biler eller værksted. Villaen byder ligeledes på solceller og har i 2024 fået indlagt fjernvarme.
Den skønne beliggenhed 
Med en placering i Aale, bor du i en by, der er kendt for et stærkt lokalliv og sammenhold. Som eksempel kan nævnes, at byens borgere har bygget byens multihal, udelukkende baseret på frivillig arbejdskraft. Derudover har Aale et godt foreningsliv med 15 forskellige foreninger samt en aktiv borgerforening, der står for mange aktiviteter i løbet af året. 
Skolen har ca. 120 elever fordelt på 1. – 6. klassetrin. Herudover er der børnehave og en skolefritidsordning. 
Fra Aale kan man desuden nå motorvejen indenfor 10 minutter og køre til bl.a. Vejle og Horsens på blot 15-25 minutter. Derudover er byerne Tørring og Brædstrup indenfor 5-10 min. kørsel. Her
findes bl.a. gode indkøbsmuligheder, gymnasium, svømmehal, idrætshal, boldbaner, 
træningscenter m.m.
Økonomien i boligen
Skal Nykredit Bank ringe for en snak om din boligøkonomi?
Fortæl os, hvornår det passer dig, så ringer en rådgiver fra Nykredit Bank dig op til en uforpligtende snak om dine lånemuligheder. Så er du et skridt tættere på din nye bolig.
Vi bruger dine oplysninger til at forberede samtalen. Læs mere i Nykredit Banks privatlivspolitik
Kontakt
 
                Kontakt
Søren Kronborg
Skal du også sælge?
Kontakt os og få en gratis salgsvurdering, så ved du hvad din bolig er værd.
- Få et hurtigt estimat af salgspris eller en grundig vurdering.
- Få et indblik i, hvad din ejendom er værd på markedet lige nu.
- Find ud af, hvor meget du selv kan købe for, hvis du ønsker at skifte bolig.
Hvor langt er der til nærmeste?
Se hvor lang tid der er mellem denne bolig og en anden adresse
Fakta om Hedensted Kommune
INDBYGGERE
GRUNDSKYLD
KOMMUNESKAT
SKOLER
BØRNEPASNING
Opret dig i køberkartoteket og få besked om lignende boliger.
Få direkte besked, når der kommer relevante nye boliger til salg, der matcher dine ønsker. Du ser også de boliger, vi får til salg, som vi ikke viser på Nybolig.dk.
Tilpas filtre og opret